Lot 19 - Flat 1, 198 Hull Road, Hessle, North Humberside, HU13 9NH

  • Unconditional Online Auction Sale
  • Guide Price* : £32,000
  • 1 bedroom
  • Ground floor flat needing refurbishment
  • Convenient Location

One bedroom ground floor flat in need of refurbishment

Description

*VIEWING DATES AND VIDEO TOUR AVAILABLE UPON REQUEST* The flat is within a converted mid-terrace two storey property and the property comprises a 1 bedroom ground floor flat in need of refurbishment. Note the tenure is leasehold with less than 55 years remaining so likely cash buyers are required. Interested parties are advised to check with their lender before bidding or making an offer.

Location

Hessle lies approximately 3.5 miles to the west of Hull city centre. Hull Road provides access to local bus routes and nearby are local neighbourhood shops and takeaway outlets. A Sainsburys Supermarket lies within 200m to the south.

Tenure

Leasehold for 99 years from 26th July 1979 at a ground rent of £10 per annum. The sellers solicitor has not managed to contact the freehold so at present no service charge or maintenance information is avaialble.

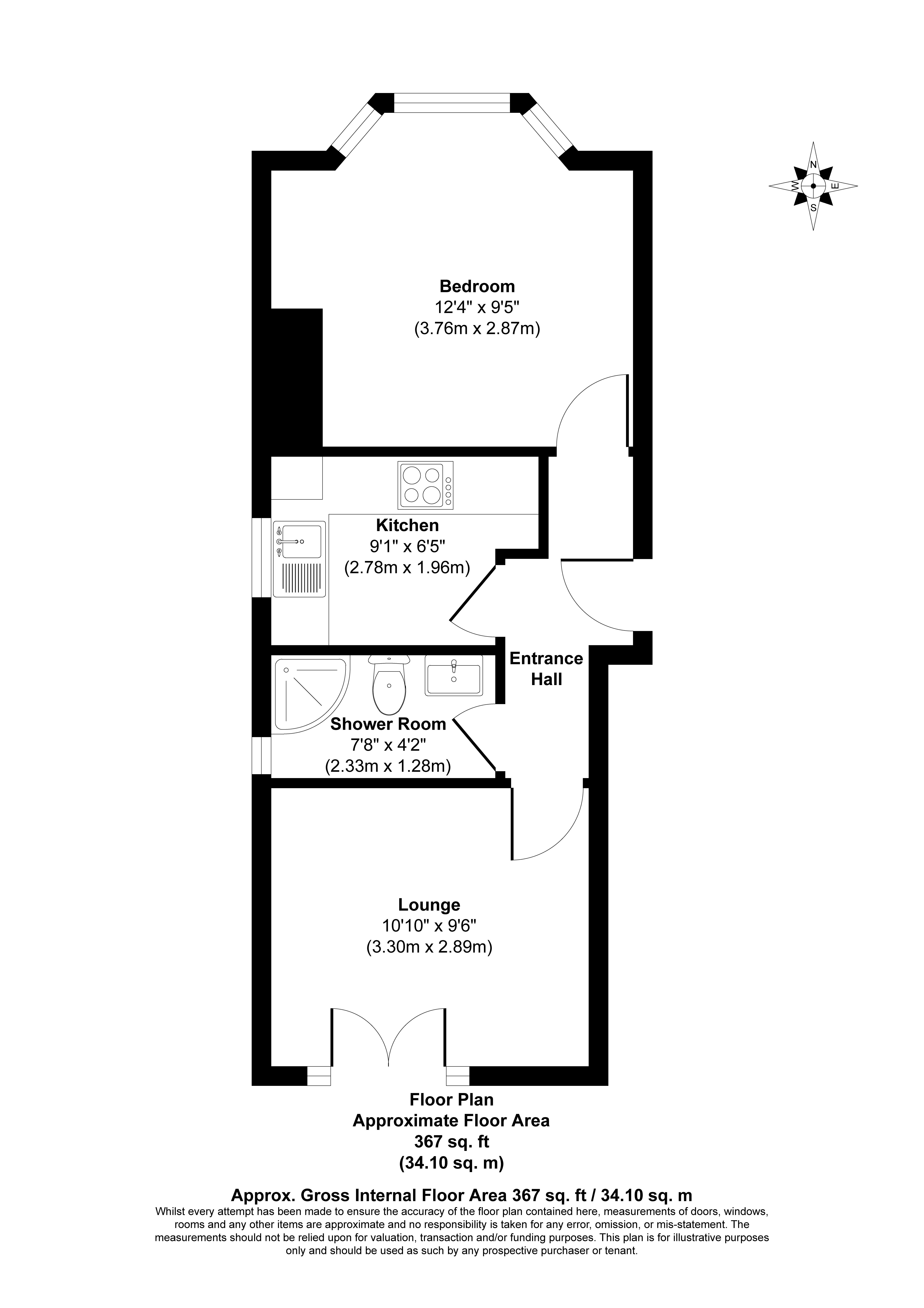
Accommodation

Hall, Bedroom, Kitchen, Lounge and Bathroom.

Outside

The lease includes parking rights.

EPC

Energy Asset Rating is D.

Council Tax Band

A

Lease Start Date

26/07/1979

Lease Duration

99 years (54 years unexpired)

Annual Ground Rent

£10

Buyers Administration Fee

There will be a Buyer's Administration Fee of £1,200 (inc VAT) payable upon exchange of contracts.

Additional Information

1. Completion will take place 14 days from the date of exchange.

2. The information contained within the Particulars are given in good faith, but all descriptions, statements, dimensions ( these may have come from a third party source e.g. the seller, valuation reports or historic sales particulars), references to condition and permissions for the use and occupation or other details are made without responsibility and should not be relied upon as representation of fact.

3. If a video walk through, or any other form of virtual tour, is provided whilst every effort is made to accurately give an overview of the property we cannot give any warranty concerning the nature, and condition of the property and the suitability thereof for any and all activities and use. The video, or tour, is provided to assist only and without responsibility and should not be relied upon as representation of fact, or replace all appropriate due diligence a prudent purchaser would make.

* Generally speaking Guide Prices are provided as an indication of each seller's minimum expectation, i.e. 'The Reserve'. They are not necessarily figures which a property will sell for and may change at any time prior to the auction. Virtually every property will be offered subject to a Reserve (a figure below which the Auctioneer cannot sell the property during the auction) which we expect will be set within the Guide Range or no more than 10% above a single figure Guide.

Loading the bidding panel...

Finance Available | Enquire Here

Additional Documents

Office Contact

Kate Lay
0161 967 0122
Logo

Important Documents

Agreement Documents

Related Documents

Legal Documents

Log in to view legal documents

Make an Enquiry

Submit an enquiry and someone will be in contact shortly.

 
*  
*  
*
*
*

Share