Lot 3 - 507 Witham Wharf, Brayford Street, Lincoln, Lincolnshire, LN5 7AY

  • Unconditional Online Auction Sale
  • Guide Price* : £145,000

Addendum

Leasehold for 999 years from 5th June 2007 at a ground rent of £62.52 per quarter and a service charge of £547.41 per quarter.

  • Two Bedroom Sixth Floor Apartment
  • Cladding works to be recovered by the Building Safety Fund
  • Convenient Location
  • Balcony

Vacant 2 bedroom sixth floor apartment

Description

A vacant 2 bedroom sixth floor apartment comprising a communal entrance, hall, open plan Kitchen/living Area, two bedrooms, ensuite shower room and bathroom. The property benefits from permit parking and a decked balcony seating area and the block has a concierge service.

Location

Located in a City Centre position and close to Lincoln University. The train station is within 300m and local bus routes are easily accessible on Wigford Way.

Tenure

Leasehold for 999 years from 5th June 2007 at a ground rent of £62.52 per quarter and a service charge of £547.41 per quarter.

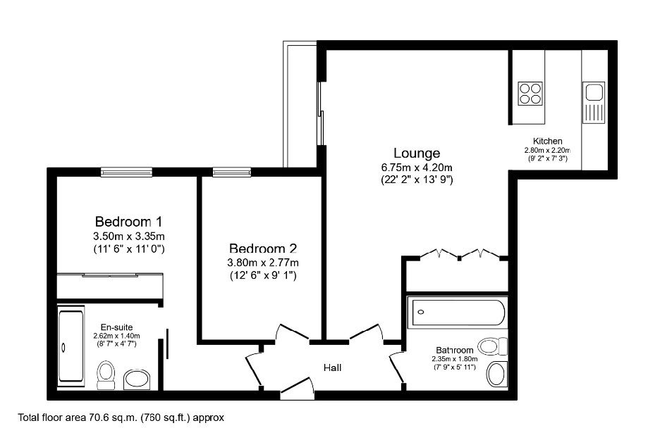
Accommodation

Communal Entrance
Hall
Open Plan Lounge/Kitchen 21'9" x 17'1" (6.69m x 5.23m)
Bedroom One 12'4" x 10'3" (3.8m x 3.15m)
En Suite Shower Room 8'7" x 4'5" (2.67m x 1.4m)
Bedroom Two 13'2" x 8'3" (4.05m x 2.55m)
Main Bathroom 7'6" x 5'9" (2.32m x 1.82m)

Outside

Permit parking.

EPC

Energy Performance Asset Rating - C

Council Tax Band

C

Lease Start Date

05/06/2007

Lease Duration

999 years (983 years unexpired)

Annual Ground Rent

£250

Annual Service Charge

£2,190

Buyers Administration Fee

There will be a Buyer's Administration Fee of £2,400 (inc VAT) payable upon exchange of contracts.

Additional Information

1. We understand that there may be issues with cladding and as such there may be limited lenders willing to lend at present.

2. Completion will take place 14 days from the date of exchange.

3. The information contained within the Particulars are given in good faith, but all descriptions, statements, dimensions ( these may have come from a third party source e.g. the seller, valuation reports or historic sales particulars), references to condition and permissions for the use and occupation or other details are made without responsibility and should not be relied upon as representation of fact.

4. If a video walk through, or any other form of virtual tour, is provided whilst every effort is made to accurately give an overview of the property we cannot give any warranty concerning the nature, and condition of the property and the suitability thereof for any and all activities and use. The video, or tour, is provided to assist only and without responsibility and should not be relied upon as representation of fact, or replace all appropriate due diligence a prudent purchaser would make.

* Generally speaking Guide Prices are provided as an indication of each seller's minimum expectation, i.e. 'The Reserve'. They are not necessarily figures which a property will sell for and may change at any time prior to the auction. Virtually every property will be offered subject to a Reserve (a figure below which the Auctioneer cannot sell the property during the auction) which we expect will be set within the Guide Range or no more than 10% above a single figure Guide.

Loading the bidding panel...

Finance Available | Enquire Here

Additional Documents

Office Contact

Kate Lay
0161 967 0122
Logo

Important Documents

Agreement Documents

Related Documents

Legal Documents

Log in to view legal documents

Make an Enquiry

Submit an enquiry and someone will be in contact shortly.

 
*  
*  
*
*
*

Share