Lot 5 - Mount Pleasant House, Cottage and 2 Building Plots, Wolverhampton Road, Acton Gate, Staffordshire, ST18 9AA

  • Unconditional Online Auction Sale
  • Guide Price* : £650,000
  • Development and Renovation Opportunity
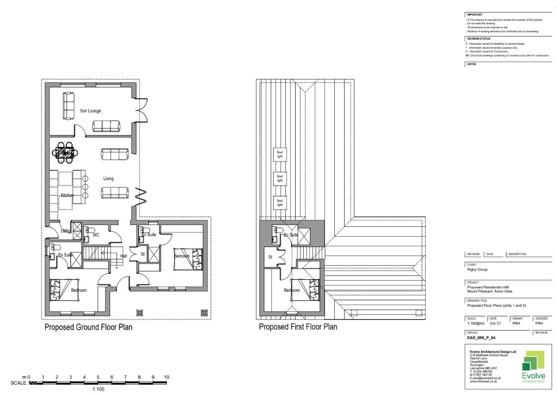
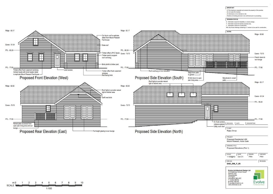
  • Planning for Two Three Bedroom Bungalows
  • Convenient Location
  • Good Road Links
  • Semi-Rural Location

DEVELOPMENT OPPORTUNITY - Two existing period properties requiring renovation (fire damaged), together with planning permission for the erection of two bungalows on adjacent land

Description

A Freehold site comprising two existing period properties which have suffered from fire damage and vandalism and will require a full scheme of renovation, together with planning permission for the erection of two three bedroom bungalows on adjacent land. The existing properties are part of a terrace and we understand one of them has an element of a flying freehold above it relating to the adjoining property. These existing properties extend to just under 2,500 sq. ft (with some areas of restricted headroom).

The planning permission was granted on 4th July 2022 (Application No: 21/01307/FUL) subject to a section 106 Agreement and the documents can be viewed via the Council's Public Access system here: https://planning.sstaffs.gov.uk/online-applications/applicationDetails.do?activeTab=documents&keyVal=R3R7XDOXMLD00.

The proposed development shows access across unregistered land and interested parties are advised to refer to the Title Documents in the legal pack and rely on their own enquiries.

Location

Located in a semi-rural area, with good access to the M6 with Junction 13 lying approximately 0.5 mile to the south and Stafford town centre is approximately 2.5 miles to the north,

Tenure

Freehold across 2 titles.

EPC

Energy Asset Rating is E for each of the existing properties.

Buyers Administration Fee

There will be a Buyer's Administration Fee of £2,400 (inc VAT) payable upon exchange of contracts.

Additional Information

1. The information contained within the Particulars are given in good faith, but all descriptions, statements, dimensions ( these may have come from a third party source e.g. the seller, valuation reports or historic sales particulars), references to condition and permissions for the use and occupation or other details are made without responsibility and should not be relied upon as representation of fact.

2. If a video walk through, or any other form of virtual tour, is provided whilst every effort is made to accurately give an overview of the property we cannot give any warranty concerning the nature, and condition of the property and the suitability thereof for any and all activities and use. The video, or tour, is provided to assist only and without responsibility and should not be relied upon as representation of fact, or replace all appropriate due diligence a prudent purchaser would make.

* Generally speaking Guide Prices are provided as an indication of each seller's minimum expectation, i.e. 'The Reserve'. They are not necessarily figures which a property will sell for and may change at any time prior to the auction. Virtually every property will be offered subject to a Reserve (a figure below which the Auctioneer cannot sell the property during the auction) which we expect will be set within the Guide Range or no more than 10% above a single figure Guide.

Loading the bidding panel...

Finance Available | Enquire Here

Additional Documents

Office Contact

Kate Lay
0161 967 0122
Logo

Important Documents

Agreement Documents

Related Documents

Legal Documents

Log in to view legal documents

Make an Enquiry

Submit an enquiry and someone will be in contact shortly.

 
*  
*  
*
*
*

Share