Lot 4 - 4 Oak Tree Close (aka Plot 4, Fair View House), Burnhope, Durham, DH7 0BL

  • Unconditional Online Auction Sale
  • Guide Price* : £180,000
  • Requires finishing off works & Renovation
  • 6 Bedroom Detached House
  • Approximately 2,648 sq. ft
  • Rural aspect to rear and side

Vacant detached six bedroom house in need of renovation and finishing off works

Description

*VIDEO TOUR AND VIEWINGS AVAILABLE UPON REQUEST*: The property comprises what appears to be a relatively new build detached six bedroom house that is in need of finishing off works and renovation. Please note that the seller does not have any first hand knowledge of the property and interested parties will have to rely on their own enquiries in respect of planning, building regulation and other associated matters.

Location

The property is located off Langley Lane and adjacent to open fields at the rear. The village of Burnhope lies approximately 6 miles northwest of Durham city centre and 10 miles south of Newcastle-upon-Tyne. Access to the A1(M) is t the east of Durham.

Tenure

Freehold.

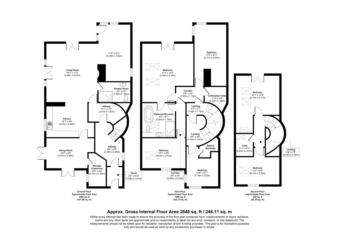
Accommodation

Ground Floor:
Porch
Storage/Cloak Room - 3.15m x 1.45m (10'4" x 4'9"
Hallway
Dining Room - 4.57m x 2.88m (15'0"x 9'5")
Kitchen - 4.61m x 2.84m (15'1" x 9'4")
Living Room - 5.66m x 5.23m plus 5.39m x 3.02m (18'3"x17'2" plus 17'8"x9'11")
Shower room & WC

First Floor:
Landing
Bedroom 1 - 5.24m x 4.18m (17'2"x13'9")
Bedroom 2 - 5.31m x 3.03m (17'5"x9'11")
Bedroom 3 - 4.03m x 2.87m (13'3"x9'5")
Bedroom 4 - 3.19m x 3.03m (10'6" x 9'11")
Bathroom
WC (to be finished)

Second Floor:
Landing
Bedroom 5 - 6.74m x 4.17m (22'1" x 13'8")
Bedroom 6 - 4.144m x 2.59m (13'7" x 8'6")
WC

Outside

Unfinished garden areas

EPC

Energy Asset Rating is E.

Buyers Administration Fee

There will be a Buyer's Administration Fee of £2,400 (inc VAT) payable upon exchange of contracts.

Additional Information

1. Completion will take place 14 days from the date of exchange.

2. The information contained within the Particulars are given in good faith, but all descriptions, statements, dimensions ( these may have come from a third party source e.g. the seller, valuation reports or historic sales particulars), references to condition and permissions for the use and occupation or other details are made without responsibility and should not be relied upon as representation of fact.

3. If a video walk through, or any other form of virtual tour, is provided whilst every effort is made to accurately give an overview of the property we cannot give any warranty concerning the nature, and condition of the property and the suitability thereof for any and all activities and use. The video, or tour, is provided to assist only and without responsibility and should not be relied upon as representation of fact, or replace all appropriate due diligence a prudent purchaser would make.

* Generally speaking Guide Prices are provided as an indication of each seller's minimum expectation, i.e. 'The Reserve'. They are not necessarily figures which a property will sell for and may change at any time prior to the auction. Virtually every property will be offered subject to a Reserve (a figure below which the Auctioneer cannot sell the property during the auction) which we expect will be set within the Guide Range or no more than 10% above a single figure Guide.

Loading the bidding panel...

Finance Available | Enquire Here

Additional Documents

Office Contact

Kate Lay
0161 967 0122
Logo

Important Documents

Agreement Documents

Related Documents

Legal Documents

Log in to view legal documents

Make an Enquiry

Submit an enquiry and someone will be in contact shortly.

 
*  
*  
*
*
*

Share