Lot 1 - Flat 43 Chorcliffe House, Hollinshead Street, Chorley, Lancashire, PR7 1EP

  • Unconditional Online Auction Sale
  • Guide Price* : £22,500

Addendum

Please see copy correspondence in the Legal Pack relating to the Emergency Prohibition Order.

  • One Bedroom Second Floor Flat
  • Requires refurbishment
  • Located in a Conservation Area
  • Close to Chorley town centre

Vacant one bedroom second flat

Description

* VIDEO TOUR AVAILABLE UPON REQUEST * The property comprises a vacant one bedroom second floor flat which is in poor condition and will require a scheme of refurbishment.

Location

Chorcliffe House is located fronting Hollinshead Street and is situated within the St Laurence's Conservation Area. Chorley town centre is approximately a 5 minute walk away. The property is well located for amenities and transport links.

Tenure

The property is held Leasehold.

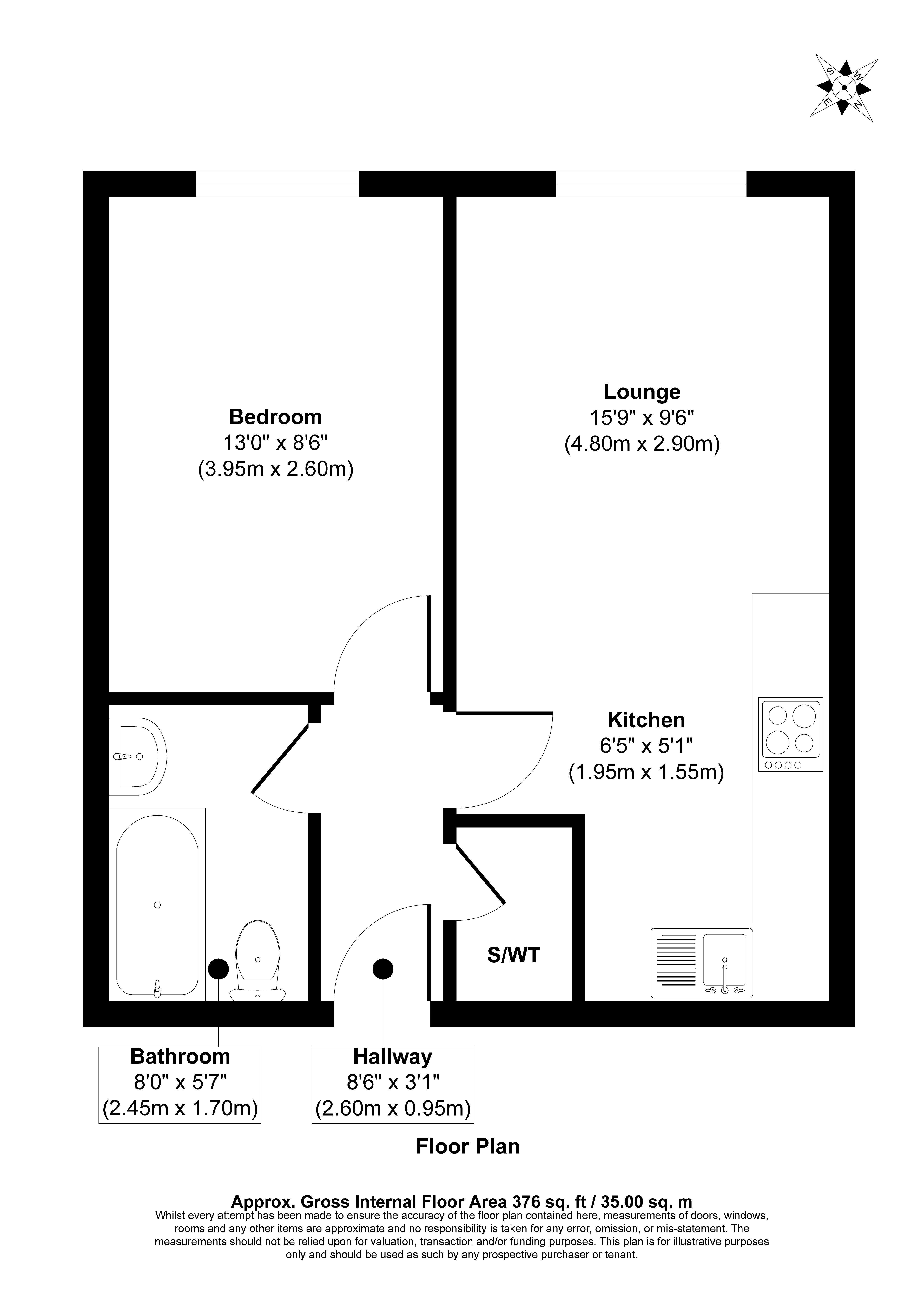
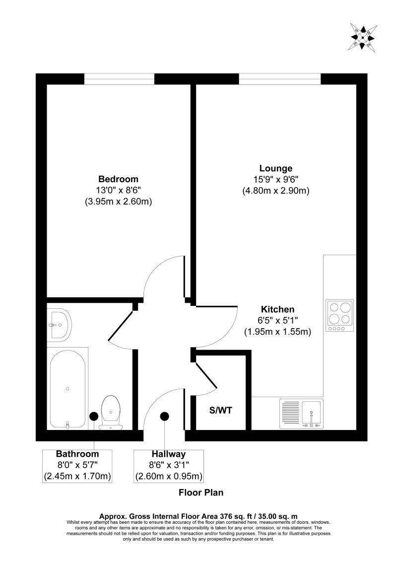
Accommodation

Living Room, Kitchen, Bathroom/W.C and Bedroom

Outside

Ample parking spaces - not allocated.

EPC

Energy Performance Asset Rating - C

Council Tax Band

A

Buyers Administration Fee

There will be a Buyer's Administration Fee of £2,400 (inc VAT) payable upon exchange of contracts.

Additional Information

1. Completion will take place 14 days from the date of exchange.

2. The information contained within the Particulars are given in good faith, but all descriptions, statements, dimensions ( these may have come from a third party source e.g. the seller, valuation reports or historic sales particulars), references to condition and permissions for the use and occupation or other details are made without responsibility and should not be relied upon as representation of fact.

3. If a video walk through, or any other form of virtual tour, is provided whilst every effort is made to accurately give an overview of the property we cannot give any warranty concerning the nature, and condition of the property and the suitability thereof for any and all activities and use. The video, or tour, is provided to assist only and without responsibility and should not be relied upon as representation of fact, or replace all appropriate due diligence a prudent purchaser would make.

* Generally speaking Guide Prices are provided as an indication of each seller's minimum expectation, i.e. 'The Reserve'. They are not necessarily figures which a property will sell for and may change at any time prior to the auction. Virtually every property will be offered subject to a Reserve (a figure below which the Auctioneer cannot sell the property during the auction) which we expect will be set within the Guide Range or no more than 10% above a single figure Guide.

Loading the bidding panel...

Finance Available | Enquire Here

Additional Documents

Office Contact

Kate Lay
0161 967 0122
Logo

Important Documents

Agreement Documents

Related Documents

Legal Documents

Log in to view legal documents

Make an Enquiry

Submit an enquiry and someone will be in contact shortly.

 
*  
*  
*
*
*

Share