Lot 1 - 16 Glebe Crescent, Ilkeston, Derbyshire, DE7 5PF

  • Unconditional Online Auction Sale
  • Guide Price* : £80,000

Three bedroom semi detached house in poor condition.

Description

The property comprises a three bedroom semi detached house which is in poor condition and may have potentially suffered from fire damage.

Location

The property is located off Greenwood Avenue in a popular area of Ilkeston.

Accommodation

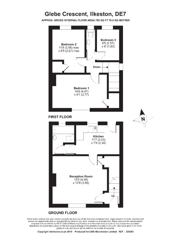
Ground Floor: Vestibule, Living Room, Kitchen and Bathroom/W.C
First Floor: Landing, Three Bedrooms and Separate W.C

Outside

Driveway, front and rear gardens.

Buyers Administration Fee

There will be a Buyer's Administration Fee of £1,500 (inc VAT) payable upon exchange of contracts.

Additional Information

1. Completion will take place 14 days from the date of exchange.

2. The information contained within the Particulars are given in good faith, but all descriptions, statements, dimensions, references to condition and permissions for the use and occupation or other details are made without responsibility and should not be relied upon as representation of fact

Any dimensions stated may have come from a third party source (e.g. the seller, valuation reports or historic sales particulars) so whilst provided in good faith, they should not be relied on and interested parties should rely on their own enquiries.

* Generally speaking Guide Prices are provided as an indication of each seller's minimum expectation, i.e. 'The Reserve'. They are not necessarily figures which a property will sell for and may change at any time prior to the auction. Virtually every property will be offered subject to a Reserve (a figure below which the Auctioneer cannot sell the property during the auction) which we expect will be set within the Guide Range or no more than 10% above a single figure Guide.

Loading the bidding panel...

Finance Available | Enquire Here

Additional Documents

Important Documents

Agreement Documents

Related Documents

Legal Documents

Log in to view legal documents

Make an Enquiry

Submit an enquiry and someone will be in contact shortly.

 
*  
*  
*
*
*

Share