Lot 10 - Unit 14, Vauxhall Industrial Estate, Ruabon, Wrexham, Clwyd, LL14 6HA

  • Unconditional Online Auction Sale
  • Guide Price* : £1,750,000
  • Modern Warehouse/Production facility
  • 44,374 sq ft (4122.48 sq m)
  • Site 1.91 acre
  • 3 loading doors Min 5m eaves Offices at Ground & Frist Floors
  • Min 5m eaves
  • Offices at Ground & Frist Floors

Vacant Modern Production/Warehouse Approximately 44,374 sq ft (4122.48 sq m)

Description

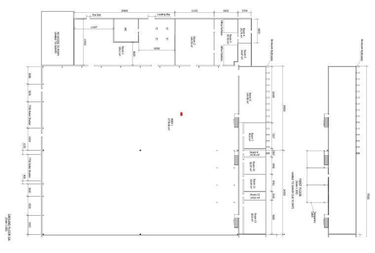
The property comprises a large semi detached manufacturing/warehouse unit of steel portal frame construction within a self contained and secure site of 1.91 acres.

The site was completely overhauled in 2018 where it was comprehensively refurbished to include upgrading of offices, re- cladding of elevations and a new roof.

The main production/warehouse is arranged across 2 bays, has a minimum eaves height of 5m, benefits from 3 phase power (200kva), translucent roof lights, LED lighting and is serviced by 2 full height surface loading doors to the Eastern elevation (door heights 4m (H) x 7,5 m (w) leading to a loading apron (depth 9 m).

The southern yard area has a depth of 20m.

The property incorporates a lower level store/ production workshop with a working height of 3 m which is accessed from the main warehouse with an an external loading door to the yard area (Dimensions 2.8m (h) x 4.5 m (w).

Offices and welfare facilities are provided over ground & first floor with generous parking area fronting the site.

Key benefits include:

Steel Portal Frame
Generous Yard areas
3 loading doors
Min 5m eaves
Offices at Ground & Frist Floors

Location

Ruabon is 5 miles south of Wrexham, a principal commercial and regional centre for North East Wales (12 miles south of Chester) and accessed via the A483

The unit fronts the Vauxhall Industrial Estate on Ruabon Rd and occupiers a prominent roadside position on an established industrial park, It is situated to the north of Ruabon, approximately 1.5 miles from the main dual carriageway A483 (T) accessed via the Bangor Rd (B 5426) and Ruabon Rd.

Tenure

Freehold.

Accommodation

Warehouse 29,582.00 sq ft 2,748.17 sq m
Production/Store 8,510.00 sq ft 790.58 sq m
Ground Floor Offices 3,141.00 sq ft 291.80 sq m
First Floor Offices 3,141.00 sq ft 291.80 sq m

EPC

Energy Asset Rating is B.

Buyers Administration Fee

There will be a Buyer's Administration Fee of £3,000 (inc VAT) payable upon exchange of contracts.

* Generally speaking Guide Prices are provided as an indication of each seller's minimum expectation, i.e. 'The Reserve'. They are not necessarily figures which a property will sell for and may change at any time prior to the auction. Virtually every property will be offered subject to a Reserve (a figure below which the Auctioneer cannot sell the property during the auction) which we expect will be set within the Guide Range or no more than 10% above a single figure Guide.

Loading the bidding panel...

Finance Available | Enquire Here

Joint Agent

Anthony O’Keefe

Additional Documents

Office Contact

James Ashworth
0161 967 0122
Logo

Important Documents

Agreement Documents

Related Documents

Legal Documents

Log in to view legal documents

Make an Enquiry

Submit an enquiry and someone will be in contact shortly.

 
*  
*  
*
*
*

Share