Lot 1 - James Court, Gainsborough, Lincolnshire, DN21 2FB

  • Unconditional Online Auction Sale
  • Guide Price* : £350,000 to £375,000

ON BEHALF OF RECEIVERS: Attractive development of six apartments and an office suite part let (2 vacant units) and let at an annual equivalent income of £26,700, with potential to rise to £37,200

Description

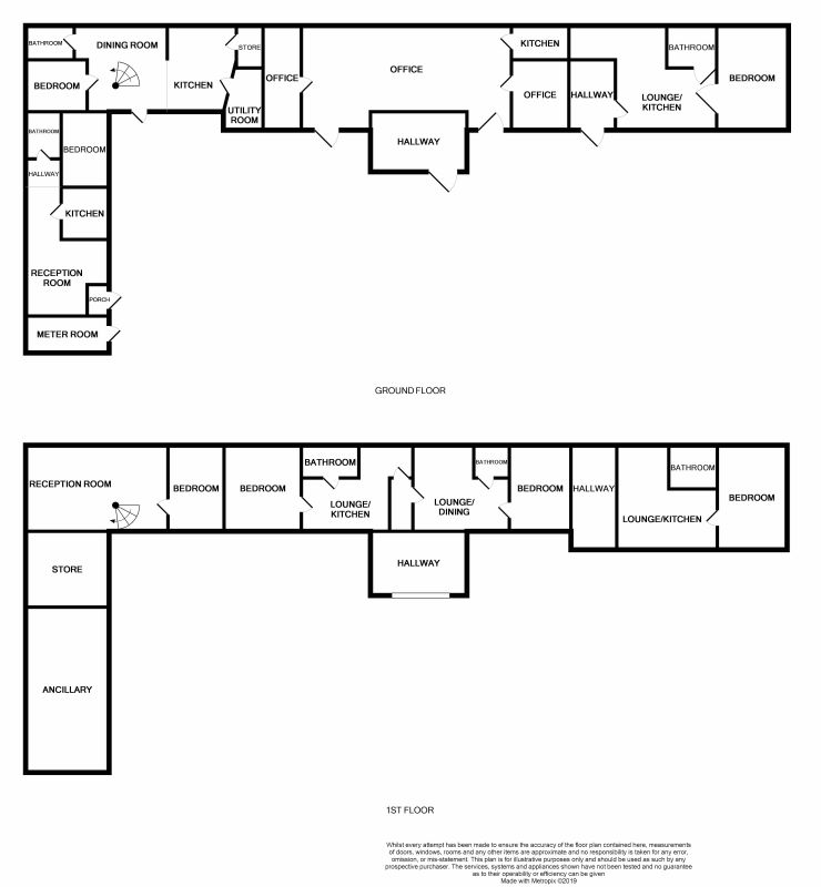
The property provides an attractive development of six apartments and an office suite. It is of two storey construction with brick elevations, beneath a pitched slate covered roof. Windows are timber framed and double glazed, with timber doors. The building is configured in an L shape, surrounding a courtyard/car parking area with space for approximately 11 cars.

Location

The property is located on Northholmem close to the town centre of of Gainsborough, which is approximately 18 miles to the north west of Lincoln and 20 miles to the south east of Doncaster.

Junction 34 of the A1(M) motorway lies 15 miles to the west and Junction 3 of the M180 motorway is circa 18 miles to the north. Gainsborough Central Railway Station is located 0.3 miles from the property, within easy walking distance, and provides links to the wider rail network.

Gainsborough itself provides a range of local amenities including schools, local and national retailers, supermarkets and public houses.

Tenure

Freehold.

Accommodation

Internally the accommodation is configured to provide 5 x one bedroom apartments, a two bedroom duplex and an office suite.
Each of the apartments benefit from modern and good quality fitted kitchens and bathrooms and provide a number of original features including exposed beams.

The office suite is accessed to the ground floor and comprises an open plan office, two meeting rooms and a kitchenette.

A breakdown of the accommodation is provided within schedule within the downloadable brochure available from the auctioneers main website.

Outside

Courtyard/car parking area with space for approximately 11 cars.

The site area is approximately 0.08 Hectare (0.22 Acre).

Tenancies

4 of the 6 apartments are currently let, together with the office suite at a current annual equivalent rent of £26,700 with the potential to rise to £37,200 if the two vacant flats were let at the same rent they were previously let at (Apartment 1 at £450 pcm & Apartment 7 at £425 pcm).

Please refer to the accommodation schedule within the downloadable brochure available from the auctioneers main website.

Buyers Administration Fee

There will be a Buyer's Administration Fee of £2,400 (inc VAT) payable upon exchange of contracts.

* Generally speaking Guide Prices are provided as an indication of each seller's minimum expectation, i.e. 'The Reserve'. They are not necessarily figures which a property will sell for and may change at any time prior to the auction. Virtually every property will be offered subject to a Reserve (a figure below which the Auctioneer cannot sell the property during the auction) which we expect will be set within the Guide Range or no more than 10% above a single figure Guide.

Loading the bidding panel...

Finance Available | Enquire Here

Additional Documents

Office Contact

James Ashworth
0161 967 0122
Logo

Important Documents

Agreement Documents

Related Documents

Legal Documents

Log in to view legal documents

Make an Enquiry

Submit an enquiry and someone will be in contact shortly.

 
*  
*  
*
*
*

Share