Lot 8 - Land at Rear, 5 Peacock Fold, Leigh, Lancashire, WN7 5BG

  • Unconditional Online Auction Sale
  • Guide Price* : £50,000 plus
  • Development Land
  • PP for a 2 bedroom Dormer Bungalow
  • Cul-De-Sac location
  • Convenient

Residential development land with planning for a detached 2 bedroom dormer bungalow

Description

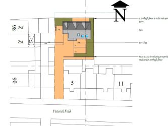
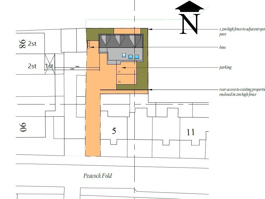
The land extends to approximately 0.07 Acres and benefits from planning for the erection of a detached 2 bedroom bungalow. The permission was granted at appeal on 1st July 2025. Full detail scan be obtained on the Wigan Council website: Planning Application: A/22/93937/FULL and Appeal Ref: APP/V4250/W/24/3357496.

Location

Located in a residential area, to the rear of dwellings on Peacock Fold which is a cul-de-sac, with a playing field at the back of the site. Convenient for local bus routes close by on the A578 and approximately 0.5 mile from Leigh town centre and within 0.25 mile of a Sainsburys and Asda supermarket.

Tenure

Freehold.

Buyers Administration Fee

There will be a Buyer's Administration Fee of £2,700 (inc VAT) payable upon exchange of contracts.

Additional Information

1. The information contained within the Particulars are given in good faith, but all descriptions, statements, dimensions ( these may have come from a third party source e.g. the seller, valuation reports or historic sales particulars), references to condition and permissions for the use and occupation or other details are made without responsibility and should not be relied upon as representation of fact.

2. If a video walk through, or any other form of virtual tour, is provided whilst every effort is made to accurately give an overview of the property we cannot give any warranty concerning the nature, and condition of the property and the suitability thereof for any and all activities and use. The video, or tour, is provided to assist only and without responsibility and should not be relied upon as representation of fact, or replace all appropriate due diligence a prudent purchaser would make.

* Generally speaking Guide Prices are provided as an indication of each seller's minimum expectation, i.e. 'The Reserve'. They are not necessarily figures which a property will sell for and may change at any time prior to the auction. Virtually every property will be offered subject to a Reserve (a figure below which the Auctioneer cannot sell the property during the auction) which we expect will be set within the Guide Range or no more than 10% above a single figure Guide.

Loading the bidding panel...

Finance Available | Enquire Here

Additional Documents

Office Contact

James Ashworth
0161 967 0122
Logo

Important Documents

Agreement Documents

Related Documents

Legal Documents

Log in to view legal documents

Make an Enquiry

Submit an enquiry and someone will be in contact shortly.

 
*  
*  
*
*
*

Share