Lot 3 - Flat 7 Pinewood, 38 Lowther Road, Bournemouth, Dorset, BH8 8NQ

  • Unconditional Online Auction Sale
  • Guide Price* : £110,000
  • Second Floor Apartment
  • One Bedroom
  • Investment Property - Let at £800pcm
  • Allocated car parking space
  • Close to a range of amenities

One bedroom second floor apartment Let on an AST at a rent of £800pcm.

Description

A residential investment property comprising a one bedroom second floor apartment within a modern development benefiting from an allocated car parking space, double glazing and central heating (not tested). The property is currently let producing an annual equivalent income of £9,600. The seller advises that a new boiler was installed in 2024 and interested parties will need to satisfy themselves in this regard.

Location

The property is located close to a range of amenities and is just a short distance to the seafront. Bournemouth Train Station is within walking distance together with a variety of local bus routes and easy access to the A35.

Tenure

The property is held Leasehold with approximately 76 years remaining. The ground rent is £415.22 per annum and the service charge is £2,291.14 per annum.

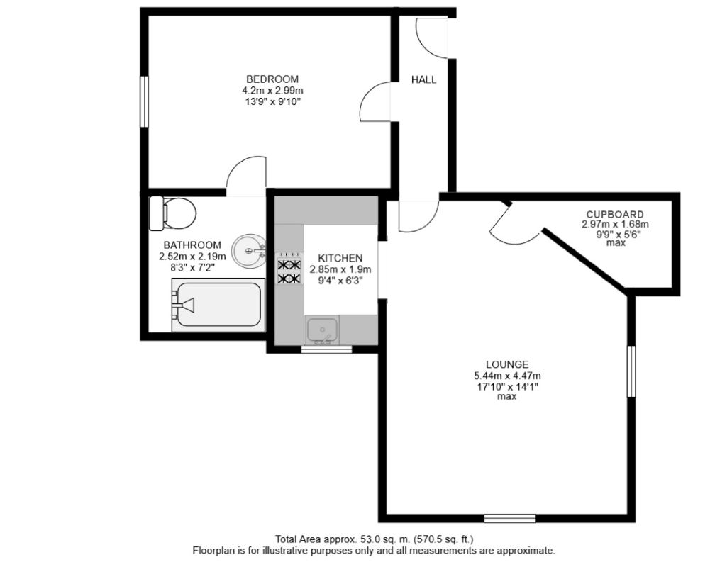
Accommodation

Hall
Storage Room
Living Room 17'8" x 14'11" (5.38m x 4.55m)
Kitchen 9'5" x 6'3" (2.86m x 1.90m)
Bedroom 13'9" x 9'11" (4.20m x 3.01m)
En Suite Bathroom/W.C 8'3" x 7'3" (2.52m x 2.20m)

Outside

Allocated car parking space and two communal garden areas.

Tenancies

The property is Let on an Assured Shorthold Tenancy agreement for a term of 6 months from the 31st March 2025 at a current rent of £800pcm.

EPC

Energy Performance Asset Rating - C

Council Tax Band

B

Buyers Administration Fee

There will be a Buyer's Administration Fee of £2,500 (inc VAT) payable upon exchange of contracts.

Additional Information

1. The information contained within the Particulars are given in good faith, but all descriptions, statements, dimensions ( these may have come from a third party source e.g. the seller, valuation reports or historic sales particulars), references to condition and permissions for the use and occupation or other details are made without responsibility and should not be relied upon as representation of fact.

2. If a video walk through, or any other form of virtual tour, is provided whilst every effort is made to accurately give an overview of the property we cannot give any warranty concerning the nature, and condition of the property and the suitability thereof for any and all activities and use. The video, or tour, is provided to assist only and without responsibility and should not be relied upon as representation of fact, or replace all appropriate due diligence a prudent purchaser would make.

* Generally speaking Guide Prices are provided as an indication of each seller's minimum expectation, i.e. 'The Reserve'. They are not necessarily figures which a property will sell for and may change at any time prior to the auction. Virtually every property will be offered subject to a Reserve (a figure below which the Auctioneer cannot sell the property during the auction) which we expect will be set within the Guide Range or no more than 10% above a single figure Guide.

Loading the bidding panel...

Finance Available | Enquire Here

Additional Documents

Office Contact

Kate Lay
0161 967 0122
Logo

Important Documents

Agreement Documents

Related Documents

Legal Documents

Log in to view legal documents

Make an Enquiry

Submit an enquiry and someone will be in contact shortly.

 
*  
*  
*
*
*

Share