Lot 4 - 37 Ty Cerrig, Cardiff, South Glamorgan, CF23 7DP

  • Unconditional Online Auction Sale
  • Guide Price* : £140,000 plus

Three bedroom link detached house in need of refurbishment.

Description

The property comprises a three bedroom link detached house in need of refurbishment.

Location

Situated in a residential area of Pentwyn, just to the north of Cardiff golf club and approximately 3.5 miles north of the city centre. Less than 0.25 mile way is an Aldi supermarket and a Waitrose supermarket is within 1 mile. Road communications are good, with easy access to the A48 and in turn the M4.

Accommodation

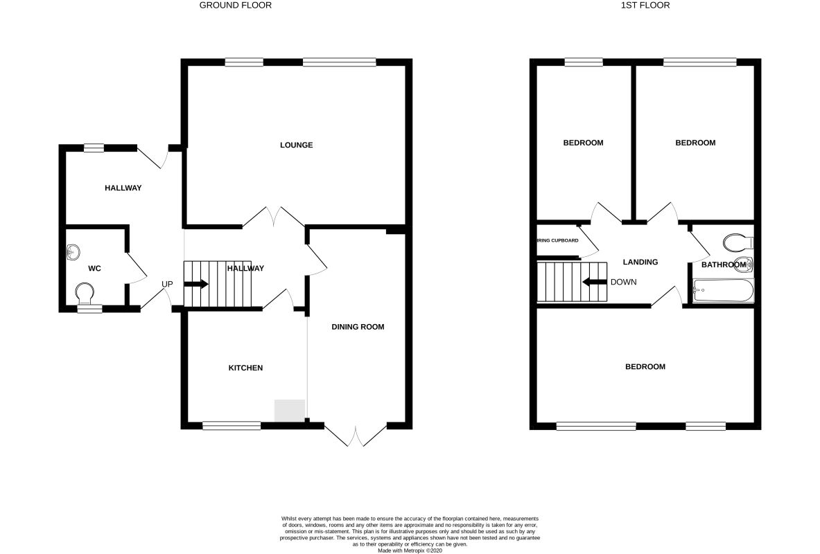
Ground Floor:

Entrance Hall and WC
Lounge: 3.96m x 5.44m (13'x17'10")
Dining Room: 4.84m x 2.47 m(15'11" x 8'1")
Kitchen: 2.86m x 2.90m (9'5" x 9'6")

First Floor:

Landing
Bedroom: 2.95m x 5.46m (9'8" x 17'11")
Bedroom: 4.01m x 2.48m (13'2" x 8'2")
Bedroom: 4.06m x 2.92m (13'4" x 9'7")
Bathroom: 1.83m x 1.94m (6' x 6'4")

Outside

Front & Rear Gardens

EPC

Energy Asset Rating is E.

Buyers Administration Fee

There will be a Buyer's Administration Fee of £1,920 (inc VAT) payable upon exchange of contracts.

Additional Information

1. Completion will take place 14 days from the date of exchange.

2. The information contained within the Particulars are given in good faith, but all descriptions, statements, dimensions, references to condition and permissions for the use and occupation or other details are made without responsibility and should not be relied upon as representation of fact.

Any dimensions stated may have come from a third party source (e.g. the seller, valuation reports or historic sales particulars) so whilst provided in good faith, they should not be relied on and interested parties should rely on their own enquiries.

* Generally speaking Guide Prices are provided as an indication of each seller's minimum expectation, i.e. 'The Reserve'. They are not necessarily figures which a property will sell for and may change at any time prior to the auction. Virtually every property will be offered subject to a Reserve (a figure below which the Auctioneer cannot sell the property during the auction) which we expect will be set within the Guide Range or no more than 10% above a single figure Guide.

Loading the bidding panel...

Finance Available | Enquire Here

Additional Documents

Office Contact

Kate Lay
0161 967 0122
Logo

Important Documents

Agreement Documents

Legal Documents

Log in to view legal documents

Make an Enquiry

Submit an enquiry and someone will be in contact shortly.

 
*  
*  
*
*
*

Share