Lot 2 - 6 and 6a Ullet Road, Liverpool, Merseyside, L8 3SR

  • Unconditional Online Auction Sale
  • Guide Price* : £750,000

Addendum


We understand from the seller that the 3 self contained flats do not require HMO licencing, but the position regarding 6A needs confirming as the licence provides for 20 persons and there 22 letting bedrooms across the properties. Additional licensing may be required and interested parties should rely on their own enquires in this regard. We have requested and await a copy EPC from the current managing agents for the remainder of 6 Ullet Road, together with copy tenancy agreements. 1 of the flats in Number 6 and all rooms in 6A are currently vacant. We understand 7 of the 14 HMO rooms in Number 6 are let at monthly rents between £320 and £350 and 2 of the self contained flats are let at £600 per month. The tenancy position is confirmed in the CPSE 6 replies and there is an update by way of a copy remittance statement confirming rents received dated 9th November 2020.

Part let detached two/three storey 14 bed HMO with 3 self contained 1 bed flats plus a single storey 8 bed HMO with potential to provide a gross income of £120,000 when fully let

Description

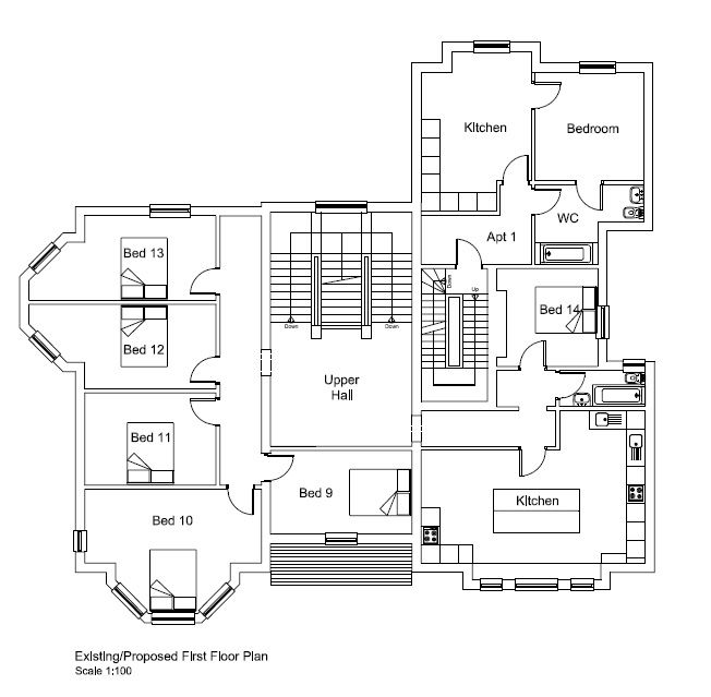
The main property (Number 6) comprises a large detached period property, part two and part three storey which was formerly a church, now converted into residential. It is now configured as a 14 bedroom HMO, with shared kitchen, lounge, utility room, basement storage, 2 bathrooms and a shower room, plus 3 self contained flats with an entrance hall, kitchen/diner, bedroom plus bathroom or shower room.

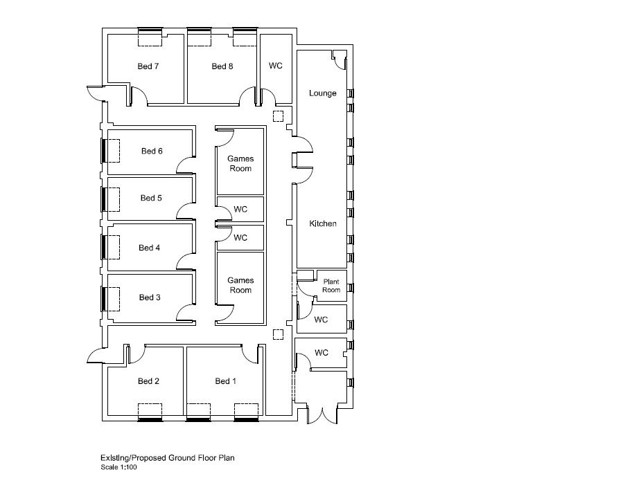
At the rear is a single storey detached property (No 6A), consisting of 8 bedrooms, a further 2 rooms, a separate living area and kitchen/diner, utility room plus 2 bathrooms and 2 shower rooms.

1 of the flats in Number 6 and all rooms in 6A are currently vacant. We understand 7 of the 14 HMO rooms in Number 6 are let at monthly rents between £320 and £350 and 2 of the self contained flats are let at £600 per month. Please refer to Legal Pack. When fully let, assuming an average rent of £375 for the letting bedrooms and £595 for the 1 bedroom flats the property could generate a gross income of £120,000 per annum.

Location

Situated in an established area for rented accommodation, ideally located to attract students and occupiers looking for short and longer term lets, the property benefits from convenient access to local bus routes on Ullet Road and the nearby A561, close proximity to Sefton and Princes Park and local shops and amenities on Lark Lane. Liverpool city centre is approximately 2 miles to the north west.

Tenure

Freehold.

Accommodation

Number 6:

Basement: 3 Rooms Storage

Ground Floor: Entrance Hall, Lounge, Utility Room, Bathroom, Shower Room and 8 Letting Rooms

First Floor: Kitchen, Bathroom and 6 Letting Rooms, plus 1 Self Contained Flat - Entrance Hall, Kitchen/Lounge, Bedroom and Bathroom

Second Floor: 2 Self Contained Flats - each with Entrance Hall, Kitchen/Lounge, Bedroom and Bathroom or Shower Rooom

Number 6A:

Ground Floor: Entrance Hall, 2 Bathrooms, 2 Shower Rooms, Kitchen/Diner, Utility, 8 Letting Rooms and a further 2 Rooms

Outside

Parking and yard at side, together with a large rear patio area and lawn with mature trees

Tenancies

1 of the flats in Number 6 and all rooms in 6A are currently vacant. We understand 7 of the 14 HMO rooms in Number 6 are let at monthly rents between £320 and £350 and 2 of the self contained flats are let at £600 per month.. Please refer to Legal Pack.

Buyers Administration Fee

There will be a Buyer's Administration Fee of £2,400 (inc VAT) payable upon exchange of contracts.

Additional Information

1. The information contained within the Particulars are given in good faith, but all descriptions, statements, dimensions ( these may have come from a third party source e.g. the seller, valuation reports or historic sales particulars), references to condition and permissions for the use and occupation or other details are made without responsibility and should not be relied upon as representation of fact.

2. If a video walk through, or any other form of virtual tour, is provided whilst every effort is made to accurately give an overview of the property we cannot give any warranty concerning the nature, and condition of the property and the suitability thereof for any and all activities and use. The video, or tour, is provided to assist only and without responsibility and should not be relied upon as representation of fact, or replace all appropriate due diligence a prudent purchaser would make.

* Generally speaking Guide Prices are provided as an indication of each seller's minimum expectation, i.e. 'The Reserve'. They are not necessarily figures which a property will sell for and may change at any time prior to the auction. Virtually every property will be offered subject to a Reserve (a figure below which the Auctioneer cannot sell the property during the auction) which we expect will be set within the Guide Range or no more than 10% above a single figure Guide.

Loading the bidding panel...

Finance Available | Enquire Here

Additional Documents

Office Contact

Kate Lay
0161 967 0122
Logo

Important Documents

Agreement Documents

Legal Documents

Log in to view legal documents

Make an Enquiry

Submit an enquiry and someone will be in contact shortly.

 
*  
*  
*
*
*

Share