Lot 2 - 21 Main Street (& 40 Challoner Street), Cockermouth, Cumbria, CA13 9LE

  • Unconditional Online Auction Sale
  • Guide Price* : £250,000

Addendum

Leasehold held on 2 leases for 1000 years from 27 December 1753 and 999 years from 1 October 1754.

  • Character premises with ground floor retail space and first and second floor residential accommodation & additional ground and first floor retail/commercial space
  • Part let at £26,320 with potential to increase to over £32,000
  • Town centre location

Town centre mixed use property part let at a current annual equivalent rent of £26,320 (with potential to increase to over £32,000 if the vacant unit is re-let at a similar rent to that previously)

Description

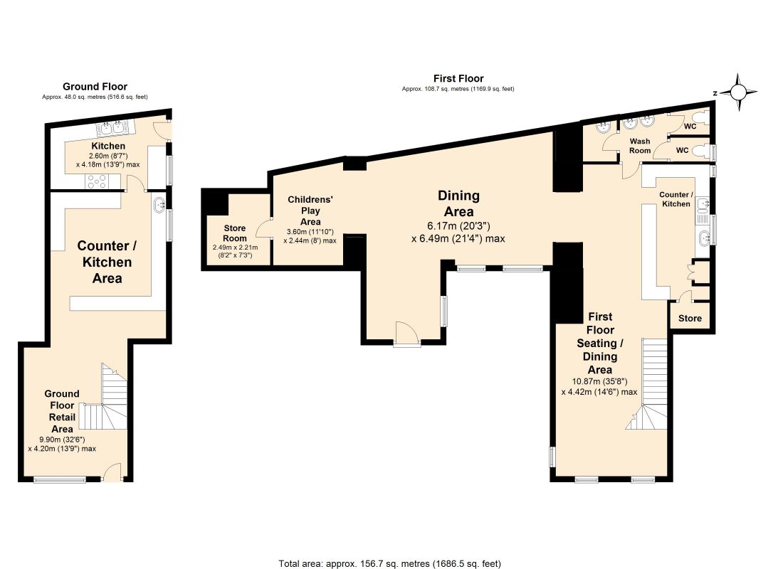
The property comprises two elements, with part fronting Main Street and the other Challoner Street.

The Main Street element comprises a comprises a three storey, substantial end of terrace building providing space over three floors, currently utilised as a charity shop with retail space on the ground floor, and residential accommodation over the first and second floor comprising two separate flats. The property is a traditional building of painted masonry construction under a pitched slate roof with glazed shop front window and timber framed, single glazed sash windows to the first and second floors.

The ground floor of the property is currently let to the Church of England Children’s Society as a charity shop (£17,500 p.a) with flat 1 and flat 2 on the first and second floor let on Assured Shorthold Tenancies (£8,820 pa).

The Challoner Street element comprises a a two storey, end of terrace building providing flexible space over two floors, previously utilised as an artisan café and bakery and currently arranged with a kitchen and dining/retail space at ground floor, seating/dining areas at first floor level with second kitchen area, male and female w/c’s, and storage space also on this floor. The property is of painted masonry construction under a pitched slate roof with timber framed, single glazed windows.

Location

The premises are located in the historic town of Cockermouth, only 20 minutes from The Lake District National Park.

Cockermouth is well known for its speciality shops and is one of Britain’s “gem” towns recognised for its importance as part of the national heritage. The Georgian and medieval streets of the town are set with an attractive countryside backdrop. Cockermouth boasts a well occupied high street with many independent shops including children’s shoe shop, butchers shop, bakery, gift shops, antiques shops, home and lifestyle shops, toy shop, chemists, jewellers, ladies clothing shops and carpet shop. There are also a number of national occupiers including Boots, Greggs and Wilko, as well as pubs, restaurants and cafes. Workington is circa 9 miles to the west, Carlisle 26 miles to the north-east, Keswick 14 miles to the east and Penrith at Junction 40 of the M6 is 31 miles to the east, reached via the A66. The town has a population of circa 7,877 (2001 census) and is considered the north-west gateway to the Lakes.

The premises are situated on the bustling Main Street surrounded by other retail, leisure and commercial, with Challoner Street round the corner providing a mixture of commercial and residential uses.

Tenure

Leasehold held on 2 leases for 1000 years from 27 December 1753 and 999 years from 1 October 1754.

Accommodation

The property provides the following approximate net internal areas from our measurements:

21 Main Street - Total Approximate NIA of the Retail Space 118.49 m2 (1,275.42 SQ ft)

40 Challoner Street - Total Approximate NIA 138.2 m2 (1,487.57 sq ft)

Tenancies

21 Main Street: The ground floor of the property is let on a ten year lease to The Children’s Society dated 25TH June 2012. The passing rent is £17,500 per annum. The first and second floor flats are occupied under Assured Shorthold Tenancies with combined passing rents of £8,820 per annum.

40 Challoner Street: Vacant. Previously let at £6,500 and operating as a cafe.

EPC

21 Main Street has an Energy Performance Asset Rating of C74. Flat 1, 21 Main Street has an EPC rating of E45 and Flat 2, 21 Main Street has an EPC rating of D55. 40 Challoner Street has an Energy Performance Asset Rating of D82.

Buyers Administration Fee

There will be a Buyer's Administration Fee of £6,000 (inc VAT) payable upon exchange of contracts.

Additional Information

1. The information contained within the Particulars are given in good faith, but all descriptions, statements, dimensions ( these may have come from a third party source e.g. the seller, valuation reports or historic sales particulars), references to condition and permissions for the use and occupation or other details are made without responsibility and should not be relied upon as representation of fact.

2. If a video walk through, or any other form of virtual tour, is provided whilst every effort is made to accurately give an overview of the property we cannot give any warranty concerning the nature, and condition of the property and the suitability thereof for any and all activities and use. The video, or tour, is provided to assist only and without responsibility and should not be relied upon as representation of fact, or replace all appropriate due diligence a prudent purchaser would make.

* Generally speaking Guide Prices are provided as an indication of each seller's minimum expectation, i.e. 'The Reserve'. They are not necessarily figures which a property will sell for and may change at any time prior to the auction. Virtually every property will be offered subject to a Reserve (a figure below which the Auctioneer cannot sell the property during the auction) which we expect will be set within the Guide Range or no more than 10% above a single figure Guide.

Loading the bidding panel...

Finance Available | Enquire Here

Joint Agent

Matthew Bell
01228 548385
Logo

Additional Documents

Office Contact

James Ashworth
0161 967 0122
Logo

Vendors Solicitor

Matthew Bibby
01228 585 245

Important Documents

Agreement Documents

Legal Documents

Log in to view legal documents

Make an Enquiry

Submit an enquiry and someone will be in contact shortly.

 
*  
*  
*
*
*

Share