Lot 1 - 97A Grove Vale, London, SE22 8EN

  • Unconditional Online Auction Sale
  • Guide Price* : £450,000 plus
  • Ground Floor two Bedroom Flat
  • Rear Garden
  • Requires Reburbishment

ON BEHALF OF THE TRUSTEE IN BANKRUPTCY : Vacant Two bedroom ground floor flat with rear garden in need of refurbishment

Description

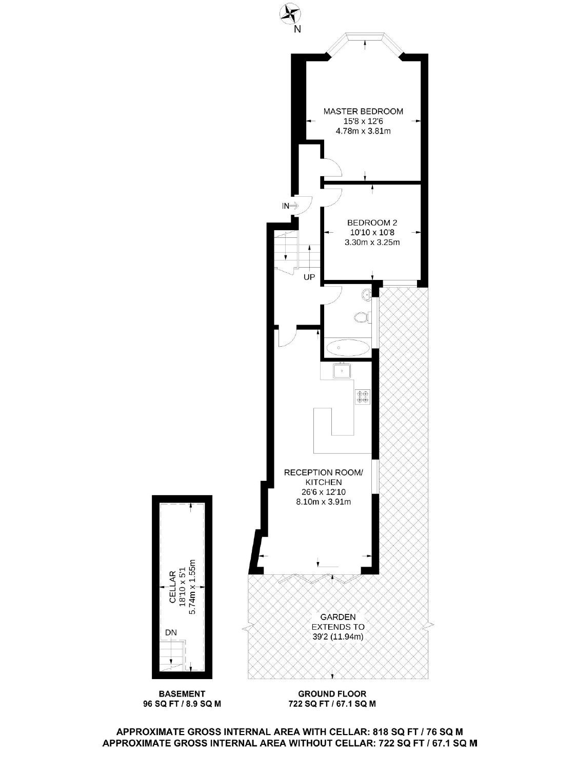
*VIDEO TOUR AVAILABLE ON REQUEST* The property comprises a ground floor flat, which benefits from two double bedrooms, an open plan kitchen/reception room and a relatively large rear garden. In addition there is cellar storage. The accommodation extends to 76 sq. m (818 sq. ft) including the cellar of 96 sq. ft (8.9 sq. m). Refurbishment is required throughout.

Location

The location allows for easy access to the bars and restaurants on Lordship Lane and the Bellenden Road and transport links include the East London tube line at Denmark Hill and Peckham Rye, as well as local bus routes along Grove Vale.

Tenure

Leasehold for 125 years from 22nd October 2007 at a current ground rent of £100 per annum.

Accommodation

Entrance Hall, Two Double Bedrooms, Bathroom and Open Plan Kitchen/Reception Room

Outside

Private rear garden.

EPC

Energy Asset Rating is D.

Buyers Administration Fee

There will be a Buyer's Administration Fee of £3,000 (inc VAT) payable upon exchange of contracts.

Additional Information

1. The information contained within the Particulars are given in good faith, but all descriptions, statements, dimensions ( these may have come from a third party source e.g. the seller, valuation reports or historic sales particulars), references to condition and permissions for the use and occupation or other details are made without responsibility and should not be relied upon as representation of fact.

2. If a video walk through, or any other form of virtual tour, is provided whilst every effort is made to accurately give an overview of the property we cannot give any warranty concerning the nature, and condition of the property and the suitability thereof for any and all activities and use. The video, or tour, is provided to assist only and without responsibility and should not be relied upon as representation of fact, or replace all appropriate due diligence a prudent purchaser would make.

* Generally speaking Guide Prices are provided as an indication of each seller's minimum expectation, i.e. 'The Reserve'. They are not necessarily figures which a property will sell for and may change at any time prior to the auction. Virtually every property will be offered subject to a Reserve (a figure below which the Auctioneer cannot sell the property during the auction) which we expect will be set within the Guide Range or no more than 10% above a single figure Guide.

Loading the bidding panel...

Finance Available | Enquire Here

Additional Documents

Office Contact

James Ashworth
0161 967 0122
Logo

Vendors Solicitor

Danielle.Dale@freeths.co.uk Dale
0845 077 9644

Important Documents

Agreement Documents

Related Documents

Legal Documents

Log in to view legal documents

Make an Enquiry

Submit an enquiry and someone will be in contact shortly.

 
*  
*  
*
*
*

Share