Lot 2 - Dove House, River Lane, Market Weighton, East Riding of Yorkshire, YO43 4LA

  • Unconditional Online Auction Sale
  • Guide Price* : £325,000 to £375,0000
  • Former residential 16 bedroom care
  • Approximately 0.20 hectares (0.49 acres).
  • Development potential STP

Freehold detached former residential 16 bedroom care home on a site of approximately 0.20 hectares (0.49 acres) with development potential

Description

The property comprises a detached former residential 16 bedroom care home understood to have been constructed in 2012, on a site of approximately 0.20 hectares (0.49 acres). The property may be suitable for a variety of Care uses including Dementia, Learning Disabilities, Childcare, Mental Health or possibly a Specialist Clinic, subject to any necessary consents. The site may also lend itself to other forms of development subject to obtaining the necessary consents.

Location

The property lies approximately 2 miles south west of Market Weighton, which provides a range local shops and amenities. York is approximately 17 miles to the north west and Hull 15 miles to the south west. The A614 and M62 motorways are easily accessible.

Tenure

Freehold

Accommodation

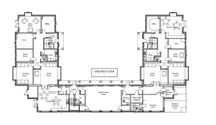
Ground Floor:
Two Kitchen/Diners, Two Offices, Two Living Rooms, Two Smoking Rooms, Two Clinics, Two Quiet Rooms, Two Utility Rooms, Fours WC's, One Multi Function Room, Seclusion Room

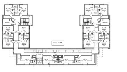
First Floor:
16 En- suite Bedrooms, Two Bathrooms, Two Store Rooms

EPC

Energy Asset Rating is B.

Buyers Administration Fee

There will be a Buyer's Administration Fee of £2,400 (inc VAT) payable upon exchange of contracts.

Additional Information

1. The information contained within the Particulars are given in good faith, but all descriptions, statements, dimensions ( these may have come from a third party source e.g. the seller, valuation reports or historic sales particulars), references to condition and permissions for the use and occupation or other details are made without responsibility and should not be relied upon as representation of fact.

2. If a video walk through, or any other form of virtual tour, is provided whilst every effort is made to accurately give an overview of the property we cannot give any warranty concerning the nature, and condition of the property and the suitability thereof for any and all activities and use. The video, or tour, is provided to assist only and without responsibility and should not be relied upon as representation of fact, or replace all appropriate due diligence a prudent purchaser would make.

* Generally speaking Guide Prices are provided as an indication of each seller's minimum expectation, i.e. 'The Reserve'. They are not necessarily figures which a property will sell for and may change at any time prior to the auction. Virtually every property will be offered subject to a Reserve (a figure below which the Auctioneer cannot sell the property during the auction) which we expect will be set within the Guide Range or no more than 10% above a single figure Guide.

Loading the bidding panel...

Finance Available | Enquire Here

Additional Documents

Office Contact

James Ashworth
0161 967 0122
Logo

Vendors Solicitor

Martin Luscombe
0121 707 8484

Important Documents

Agreement Documents

Legal Documents

Log in to view legal documents

Make an Enquiry

Submit an enquiry and someone will be in contact shortly.

 
*  
*  
*
*
*

Share