Lot 5 - Former Glynhafod Junior School, Glynhafod Street, Cwmaman, Aberdare, Mid Glamorgan, CF44 6LD

  • Unconditional Online Auction Sale
  • Guide Price* : £275,000
  • Site of approximately 0.30 hectares (0.75 acres)
  • Approximately 532 sq m (5,726 sq ft) internal area
  • Development potential STP

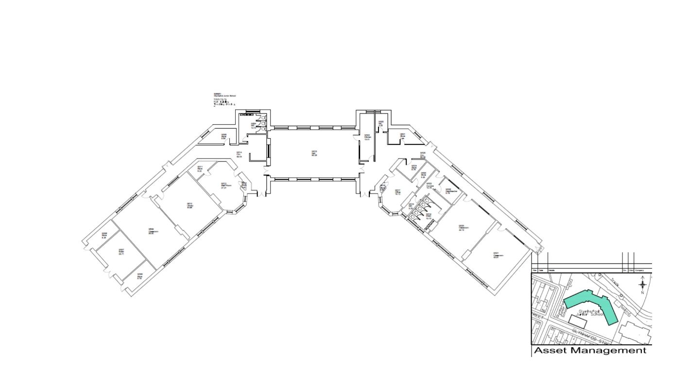
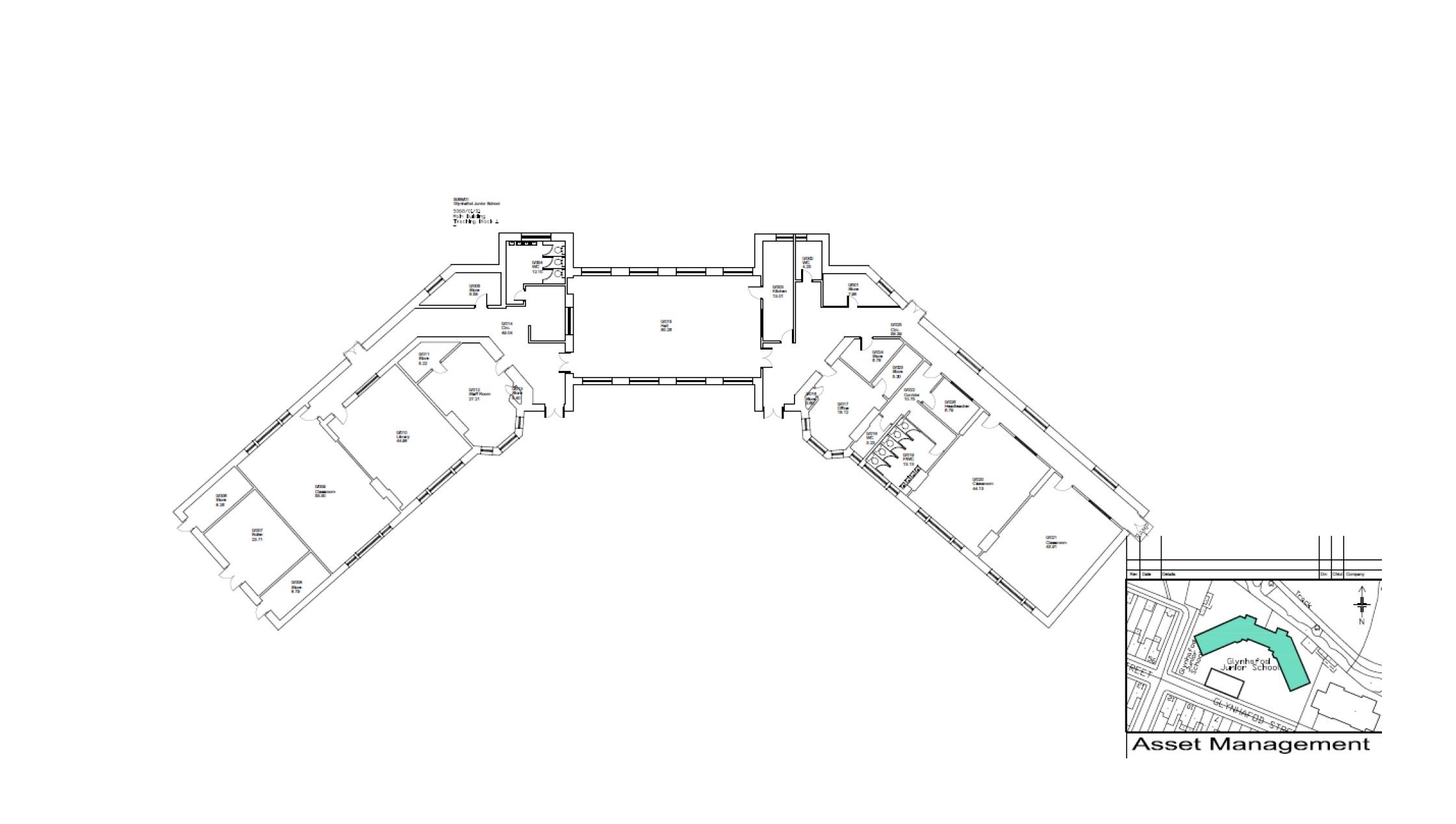
Former Junior School approximately 532 sq m (5,726 sq ft) on a site of approximately 0.30 hectares (0.75 acres) with development potential subject to obtaining the necessary consents

Description

The site extends to circa 0approximately 0.30 hectares (0.75 acres) and the accommodation within the former school consists of main hall, three classrooms, staff room, library, two offices, kitchen, store rooms, toilet facilities and boiler room. Outside there is a large former playground, play area and parking. The total useful floor area is around approximately 532 sq m (5,726 sq ft). The property is considered to have development potential subject to obtaining the necessary consents and interested parties should rely on their own enquiries in this regard.

Location

Situated in a residential area of Cwmaman, approximately 2 miles south of Anerdare. Cardiff lies approximately 18 miles to the south and Swansea is approximately 20 miles to the west.

Tenure

Freehold.

Outside

Large playground area & parking

EPC

Energy Asset Rating is D.

Buyers Administration Fee

There will be a Buyer's Administration Fee of £2,400 (inc VAT) payable upon exchange of contracts.

Additional Information

1. The local planning office is Rhondda Cynon Taf County Borough Council, Tel: 01443 425004

2. The information contained within the Particulars are given in good faith, but all descriptions, statements, dimensions ( these may have come from a third party source e.g. the seller, valuation reports or historic sales particulars), references to condition and permissions for the use and occupation or other details are made without responsibility and should not be relied upon as representation of fact.

3. If a video walk through, or any other form of virtual tour, is provided whilst every effort is made to accurately give an overview of the property we cannot give any warranty concerning the nature, and condition of the property and the suitability thereof for any and all activities and use. The video, or tour, is provided to assist only and without responsibility and should not be relied upon as representation of fact, or replace all appropriate due diligence a prudent purchaser would make.

* Generally speaking Guide Prices are provided as an indication of each seller's minimum expectation, i.e. 'The Reserve'. They are not necessarily figures which a property will sell for and may change at any time prior to the auction. Virtually every property will be offered subject to a Reserve (a figure below which the Auctioneer cannot sell the property during the auction) which we expect will be set within the Guide Range or no more than 10% above a single figure Guide.

Loading the bidding panel...

Finance Available | Enquire Here

Additional Documents

Office Contact

James Ashworth
0161 967 0122
Logo

Vendors Solicitor

Martin Luscombe
0121 707 8484

Important Documents

Agreement Documents

Related Documents

Legal Documents

Log in to view legal documents

Make an Enquiry

Submit an enquiry and someone will be in contact shortly.

 
*  
*  
*
*
*

Share