Lot 2 - 10 Luke Avenue, Cassop, Durham, County Durham, DH6 4RD

  • Unconditional Online Auction Sale
  • Guide Price* : £35,000
  • Two Bedroom Semi Detached House
  • Poor condition requiring refurbishment
  • Sough after village of Cassop

Two bedroom semi detached house in poor condition

Description

*VIDEO TOUR AVAILABLE UPON REQUEST* The property comprises a two bedroom semi detached house which is in poor condition and will require a full scheme of refurbishment.

Location

The property is located at the outskirts of the sought after and rarely available village of Cassop.

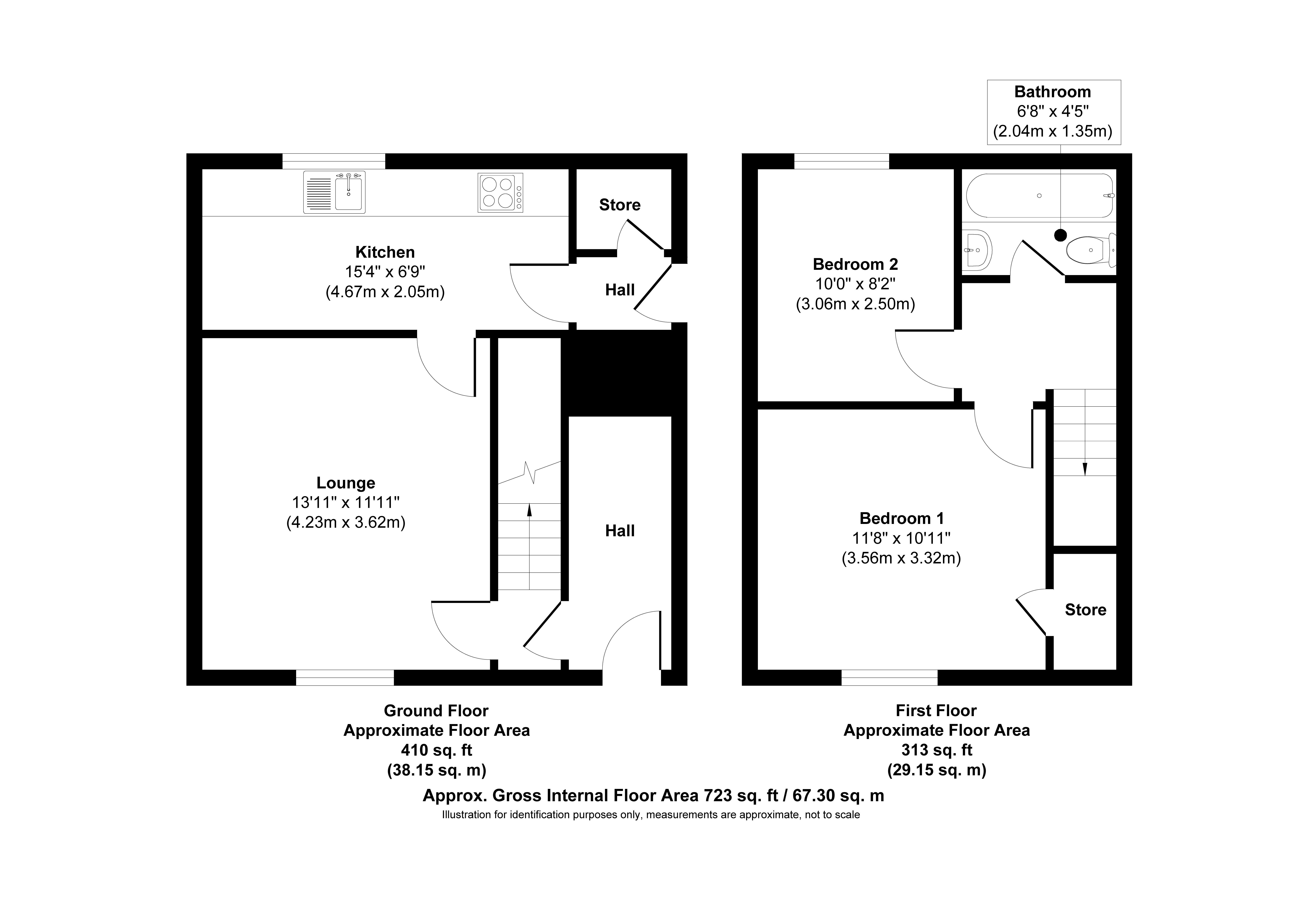
Accommodation

Ground Floor: Entrance Porch, Lobby, Lounge, Kitchen and Rear Lobby
First Floor: Landing, Two Bedrooms and Bathroom

Outside

Front and rear gardens.

EPC

Energy Performance Asset Rating - D

Council Tax Band

A

Costs

Council Tax Band A

Buyers Administration Fee

There will be a Buyer's Administration Fee of £2,400 (inc VAT) payable upon exchange of contracts.

Additional Information

1. Completion will take place 14 days from the date of exchange.

2. The information contained within the Particulars are given in good faith, but all descriptions, statements, dimensions ( these may have come from a third party source e.g. the seller, valuation reports or historic sales particulars), references to condition and permissions for the use and occupation or other details are made without responsibility and should not be relied upon as representation of fact.

3. If a video walk through, or any other form of virtual tour, is provided whilst every effort is made to accurately give an overview of the property we cannot give any warranty concerning the nature, and condition of the property and the suitability thereof for any and all activities and use. The video, or tour, is provided to assist only and without responsibility and should not be relied upon as representation of fact, or replace all appropriate due diligence a prudent purchaser would make.

* Generally speaking Guide Prices are provided as an indication of each seller's minimum expectation, i.e. 'The Reserve'. They are not necessarily figures which a property will sell for and may change at any time prior to the auction. Virtually every property will be offered subject to a Reserve (a figure below which the Auctioneer cannot sell the property during the auction) which we expect will be set within the Guide Range or no more than 10% above a single figure Guide.

Loading the bidding panel...

Finance Available | Enquire Here

Additional Documents

Vendors Solicitor

Important Documents

Agreement Documents

Related Documents

Legal Documents

Log in to view legal documents

Make an Enquiry

Submit an enquiry and someone will be in contact shortly.

 
*  
*  
*
*
*

Share