Lot 4 - Building Plot Off, Colne Road/Nan Scar, Cowling, Keighley, West Yorkshire, BD22 0NN

  • Unconditional Online Auction Sale
  • Guide Price* : £55,000 plus

Addendum

The seller informs us that quotations electricity and gas connection have been obtained in the past and copies are available on request, but interested parties should rely on their own enquiries as to what the current cost would be.

Land with residential planning consent for a 3/4 Bedroom house on a plot approximately 0.4 acres

Description

The land comprises a tri-angular plot opposite residential dwellings on Nan Scar. The site benefits from planning permission for the erection of a split level 3/4 detached dwelling of traditional stone construction and associated off street parking.

Location

Nan Scar, is a residential lane with access from Colne Road (A6068). Cowling village lies within the Craven District in a scenic rural location, surrounded by open countryside. Nearby towns include Keighley approximately 6 miles to the east, Colne approximately 5 miles to the west and Skipton approximately 5.5 miles to the north. The village has good road links as it is adjacent to the A6068 and there are railway stations at Steeton giving access to Leeds (appropriately 40 minute travel time) and Colne giving direct access to Preston.

Tenure

Freehold.

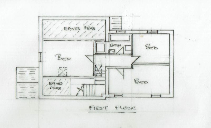
Accommodation

The permitted development provides for:

Lower Ground Floor: Living,Office or Bedroom

Ground Floor: Kitchen/Diner, Living Room and WC

First Floor: 3 Bedrooms & Bathroom

Outside

The permitted development allows off street parking.

Buyers Administration Fee

There will be a Buyer's Administration Fee of £1,500 payable upon exchange of contracts.

Additional Information

Planning consent was granted on 25th October 2016 (Application No: 22/2016/17201). Interested parties should consult direct with the Local Planning Office, Craven District Council, 1 Belle Vue Square, Broughton Road, Skipton, North Yorkshire BD23 1FJ. Tel: 01756 700600.

The vendor has been advised by the council's planning department that no policy changes have been made which would adversely affect any future applications for development on this site.

The vendor also informs us that quotations for the electricity and gas connection have been obtained in the past and copies are available on request, but interested parties should rely on their own enquiries as to what the current cost would be.

The seller informs us that quotations electricity and gas connection have been obtained in the past and copies are available on request, but interested parties should rely on their own enquiries as to what the current cost would be.

* Generally speaking Guide Prices are provided as an indication of each seller's minimum expectation, i.e. 'The Reserve'. They are not necessarily figures which a property will sell for and may change at any time prior to the auction. Virtually every property will be offered subject to a Reserve (a figure below which the Auctioneer cannot sell the property during the auction) which we expect will be set within the Guide Range or no more than 10% above a single figure Guide.

Loading the bidding panel...

Finance Available | Enquire Here

Additional Documents

Office Contact

James Ashworth
0161 967 0122
Logo

Important Documents

Agreement Documents

Legal Documents

Log in to view legal documents

Make an Enquiry

Submit an enquiry and someone will be in contact shortly.

 
*  
*  
*
*
*

Share