Lot 1 - Former Morton Hall Community Centre, Union Road, Macclesfield, Cheshire, SK11 7BN

  • Unconditional Online Auction Sale
  • Guide Price* : £150,000
  • Site approximately 0.06 Hectare (0.15 Acre)
  • Approximately 561 sq, m (6,038 sq.ft)
  • Mixed area
  • Convenient location
  • Development and alternative use potential

ON BEHALF OF CHESHIRE EAST COUNCIL: Former community centre with a gross external area of 300 sq. m (3,229 sq. ft) situated on a site of approximately 0.06 Hectare (0.15 Acre) with development potential subject to obtaining the necessary consents

Description

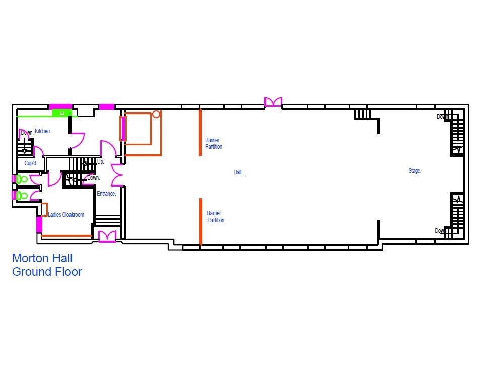
The property comprises a former community hall that is situated at the back of a 0.06 hectare (0.15 acre) site with parking to the front which is enclosed by a low rise looped railing fence. The building has an external foot print of approximately 300 sq. m (3,229 sq. ft) with the internal accommodation arranged over 2 levels; a slightly raised ground floor which has the main hall area, kitchen and ladies WC, with the basement level containing the men's WC and further storage and ancillary accommodation.

The property and/or site could be suitable for a variety of alternative uses and may have development potential subject to obtaining any necessary consents.

Location

Situated in a mixed residential and commercial area, approximately 0.25 mile to the east of Macclesfield town centre. Access to Union Road is from the A537 Buxton Road which is the main arterial road to the east and also provides access to local bus routes.

Tenure

Freeehold.

Accommodation

Extending to approximately 561 sq. m (6,038 sq.ft) based upon the EPC:

Ground Floor: Main Hall, Stage Area, Kitchen and Ladies Cloakroom
Basement Floor: Office, Staff Room, Storage and Men's Cloakroom

Outside

Parking area to the front

EPC

Energy Asset Rating is E.

Buyers Administration Fee

There will be a Buyer's Administration Fee of £1,200 (inc VAT) payable upon exchange of contracts.

Additional Information

1. The information contained within the Particulars are given in good faith, but all descriptions, statements, dimensions ( these may have come from a third party source e.g. the seller, valuation reports or historic sales particulars), references to condition and permissions for the use and occupation or other details are made without responsibility and should not be relied upon as representation of fact.

2. If a video walk through, or any other form of virtual tour, is provided whilst every effort is made to accurately give an overview of the property we cannot give any warranty concerning the nature, and condition of the property and the suitability thereof for any and all activities and use. The video, or tour, is provided to assist only and without responsibility and should not be relied upon as representation of fact, or replace all appropriate due diligence a prudent purchaser would make.

* Generally speaking Guide Prices are provided as an indication of each seller's minimum expectation, i.e. 'The Reserve'. They are not necessarily figures which a property will sell for and may change at any time prior to the auction. Virtually every property will be offered subject to a Reserve (a figure below which the Auctioneer cannot sell the property during the auction) which we expect will be set within the Guide Range or no more than 10% above a single figure Guide.

Loading the bidding panel...

Finance Available | Enquire Here

Additional Documents

Office Contact

Kate Lay
0161 967 0122
Logo

Important Documents

Agreement Documents

Related Documents

Legal Documents

Log in to view legal documents

Make an Enquiry

Submit an enquiry and someone will be in contact shortly.

 
*  
*  
*
*
*

Share