Lot 10 - 13 Connaught Road, London, W13 0TF

  • Unconditional Online Auction Sale
  • Guide Price* : £625,000 plus
  • 3 Bedroom Mid Terrace House
  • Refurbishment required
  • Convenient Location

ON BEHALF OF THE COURT APPOINTED RECEIVER: Vacant semi-detached 3 bedroom mid-terrace house

Description

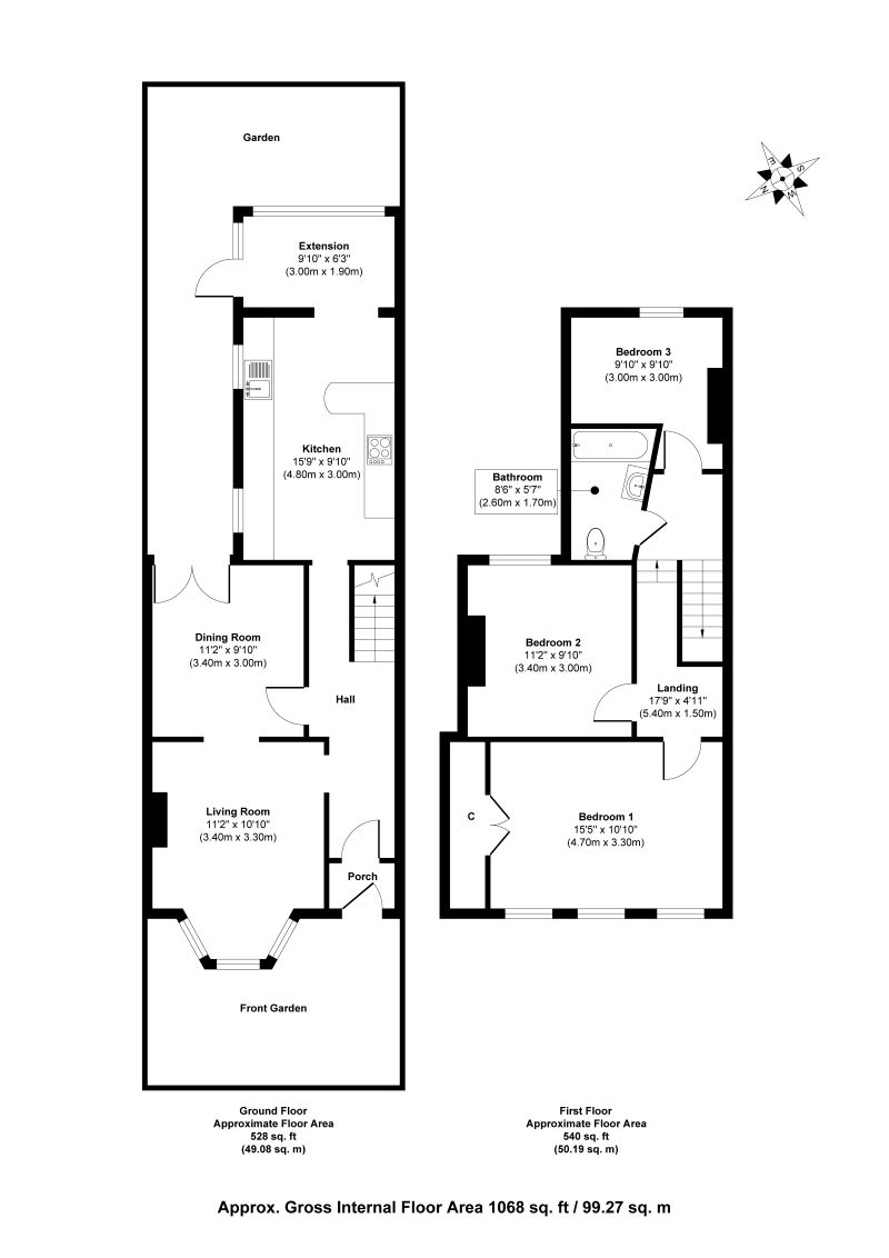
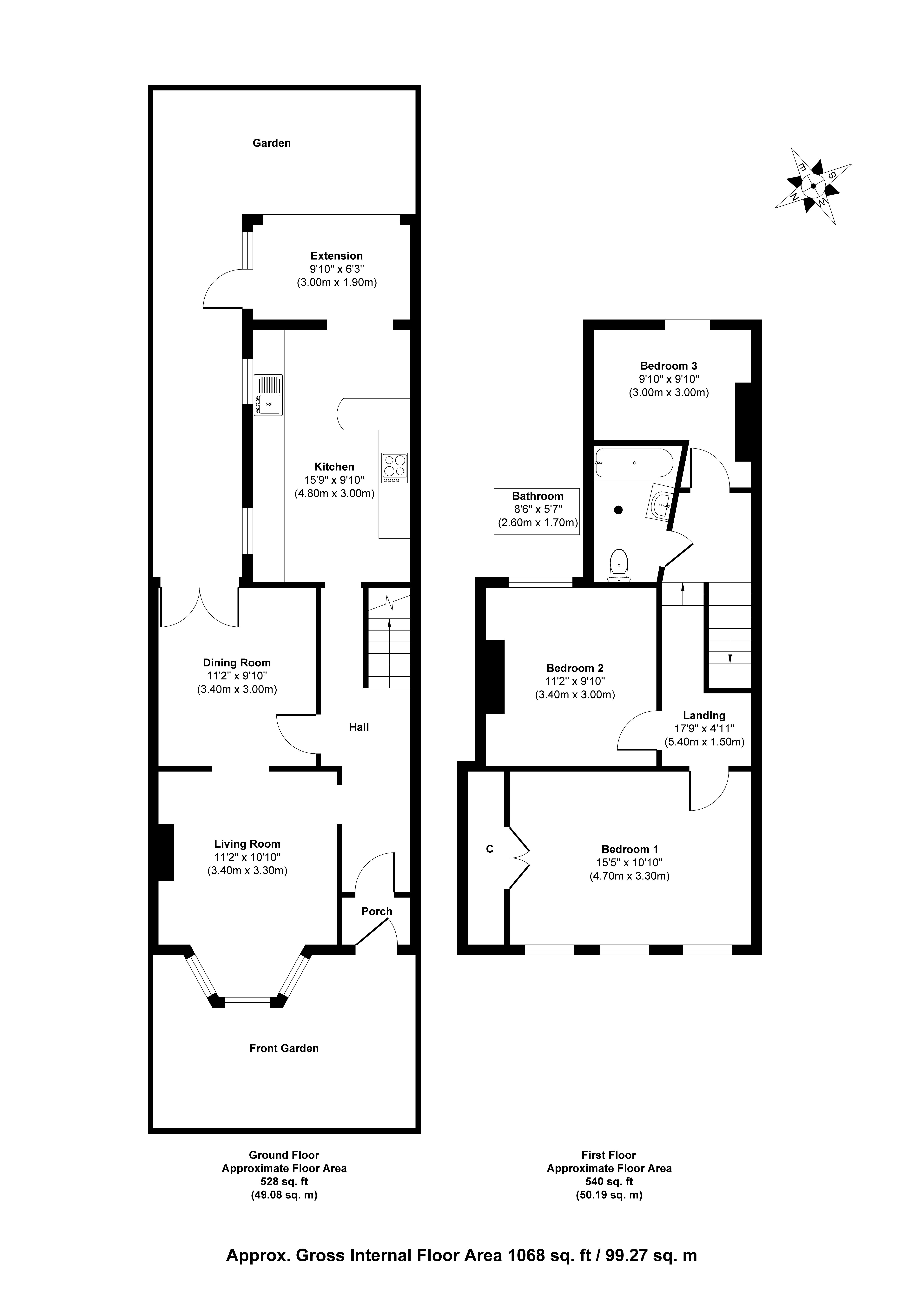
The subject comprises a three bedroom mid-terrace property. It is of two storey brick construction, a pitched tiled roof.

Internally, the ground floor entrance door opens into a hallway, with a lounge and dining room to the left and through to a kitchen and lean too/conservatory. At first floor there is a landing, two double bedrooms and a single bedroom plus a bathroom. Refurbishment is required.

Location

The property lies within an established suburban residential location, within West Ealing.

The location is very convenient, with a Waitrose Supermarket within 150 metres opposite the junction of Connaught Road and Alexandra Road. Further local retail facilities are located close by on Broadway which is within 100m and which also provides access to local bus routes. West Ealing Station is within 250m and Ealing Broadway Station is 0.75mile to the east. Both provide access to the Elizabeth Line and Ealing Broadway is also on the Central and District lines.

Tenure

Freehold.

Accommodation

Ground Floor: Entrance Hall, Lounge, Dining Room, Kitchen and Conservatory - 49.82 sq.m (536 sq. ft)
First Floor: Landing, Three Bedrooms and Bathroom - 48.74 sq.m (524 sq. ft)
Total: 98.56 sq. m (1,070 sq. ft)

Outside

There is a small front garden and a relatively large rear garden.

EPC

Energy Asset Rating is D.

Council Tax Band

E

Buyers Administration Fee

There will be a Buyer's Administration Fee of £2,700 (inc VAT) payable upon exchange of contracts.

Additional Information

1. The information contained within the Particulars are given in good faith, but all descriptions, statements, dimensions ( these may have come from a third party source e.g. the seller, valuation reports or historic sales particulars), references to condition and permissions for the use and occupation or other details are made without responsibility and should not be relied upon as representation of fact.

2. If a video walk through, or any other form of virtual tour, is provided whilst every effort is made to accurately give an overview of the property we cannot give any warranty concerning the nature, and condition of the property and the suitability thereof for any and all activities and use. The video, or tour, is provided to assist only and without responsibility and should not be relied upon as representation of fact, or replace all appropriate due diligence a prudent purchaser would make.

3. The property is being sold under Proceeds of Crime legislation. Please see Legal Pack for further details.

* Generally speaking Guide Prices are provided as an indication of each seller's minimum expectation, i.e. 'The Reserve'. They are not necessarily figures which a property will sell for and may change at any time prior to the auction. Virtually every property will be offered subject to a Reserve (a figure below which the Auctioneer cannot sell the property during the auction) which we expect will be set within the Guide Range or no more than 10% above a single figure Guide.

Loading the bidding panel...

Finance Available | Enquire Here

Additional Documents

Office Contact

James Ashworth
0161 967 0122
Logo

Important Documents

Agreement Documents

Related Documents

Legal Documents

Log in to view legal documents

Make an Enquiry

Submit an enquiry and someone will be in contact shortly.

 
*  
*  
*
*
*

Share