Lot 2 - 1 Mellor Road, Cheadle, Stockport, SK8 5AT

  • Unconditional Online Auction Sale
  • Guide Price* : £230,000 plus
  • Development/Conversion Opportunity
  • Part Converted
  • PP for Two 2 Bedroom Apartments
  • Convenient and Popular Location

ON BEHALF OF THE RECEIVERS: Part developed two storey former bakery with PP for 2 two bedroom apartments

Description

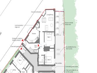
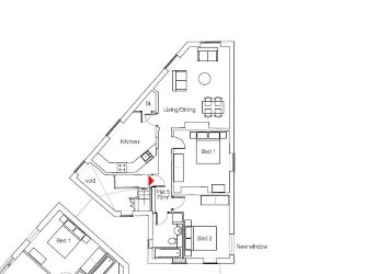
*VIEWING DATES AVAILABLE UPON REQUEST* The property comprises a two storey former bakery of brick construction and surmounted by a blue slate roof. The property is of a triangular shape, sitting on the corner of a road and with its main frontage onto Mellor Road.

The building has planning permission to create two 2 bedroom apartments, one on each floor and construction has been started.

This is part of a permission for a wider site, under permission No: DC/074037 (https://planning.stockport.gov.uk/PlanningData-live/applicationDetails.do?activeTab=documents&keyVal=PUBXRVPJHNC00) and was for the residential conversion of existing two storey building and demolition of outbuildings adjacent together with the erection of new detached building to create nine apartments. The new build element has been finished and does not form part of the sale.

The conversion works have commenced. Internally, the majority of areas the works are to first fix, but corridors/communal spaces have had no meaningful construction, other than to strip the spaces back to brick. The Receivers cannot verify the standard or scope of any works undertaken and interested parties must rely on their own inspection and form their own view regarding this, building regulations and the warranty position.

Location

The property is situated directly off Mellor Road in the centre of Cheadle Hulme within walking distance of the railway station and within a mixed residential/commercial area. There are a number of residential apartment schemes in the vicinity. Cheadle Hulme is a suburb located around 9 miles to the south of Manchester and 3 miles south-west of Stockport. The area is a popular commuter suburb and has a number of highly rated schools and nurseries locally. The A34 is located around 2 miles from the property, which is a main arterial route into Manchester City Centre, as well as leading onto the M6 at its most southern point and having connections to M60, M56 and A555. Manchester Airport is also around 4 miles from the subject.

Tenure

Freehold.

Buyers Administration Fee

There will be a Buyer's Administration Fee of £3,000 (inc VAT) payable upon exchange of contracts.

Additional Information

1. The information contained within the Particulars are given in good faith, but all descriptions, statements, dimensions ( these may have come from a third party source e.g. the seller, valuation reports or historic sales particulars), references to condition and permissions for the use and occupation or other details are made without responsibility and should not be relied upon as representation of fact.

2. If a video walk through, or any other form of virtual tour, is provided whilst every effort is made to accurately give an overview of the property we cannot give any warranty concerning the nature, and condition of the property and the suitability thereof for any and all activities and use. The video, or tour, is provided to assist only and without responsibility and should not be relied upon as representation of fact, or replace all appropriate due diligence a prudent purchaser would make.

* Generally speaking Guide Prices are provided as an indication of each seller's minimum expectation, i.e. 'The Reserve'. They are not necessarily figures which a property will sell for and may change at any time prior to the auction. Virtually every property will be offered subject to a Reserve (a figure below which the Auctioneer cannot sell the property during the auction) which we expect will be set within the Guide Range or no more than 10% above a single figure Guide.

Loading the bidding panel...

Finance Available | Enquire Here

Additional Documents

Office Contact

James Ashworth
0161 967 0122
Logo

Important Documents

Agreement Documents

Related Documents

Legal Documents

Log in to view legal documents

Make an Enquiry

Submit an enquiry and someone will be in contact shortly.

 
*  
*  
*
*
*

Share