Lot 3 - Apartment 122, 1 William Jessop Way, Liverpool, Merseyside, L3 1DZ

  • Unconditional Online Auction Sale
  • Guide Price* : £140,000
  • Two Bedroom Third Floor Apartment
  • Two Bedrooms / 24hr Concierge / Secure Parking
  • River Views

Two bedroom third floor apartment with allocated car parking space

Description

*VIDEO TOUR AVAILABLE UPON REQUEST* The property comprises a two bedroom third floor apartment within the William Jessop Way development boasting impressive River views and conveniently located on the waterfront. The apartment benefits from 24hour concierge, secure allocated car parking and an en suite to the master bedroom.

Location

The property is located in the Princes Dock just a short walk into the City Centre. Princes Dock is a popular waterside development that is only a short distance to the array of local bars, shops and excellent restaurants that Liverpool City Centre has to offer. A short walk from the soon to be stunning waterfront home of Everton Football Club.

Tenure

The property is held Leasehold.

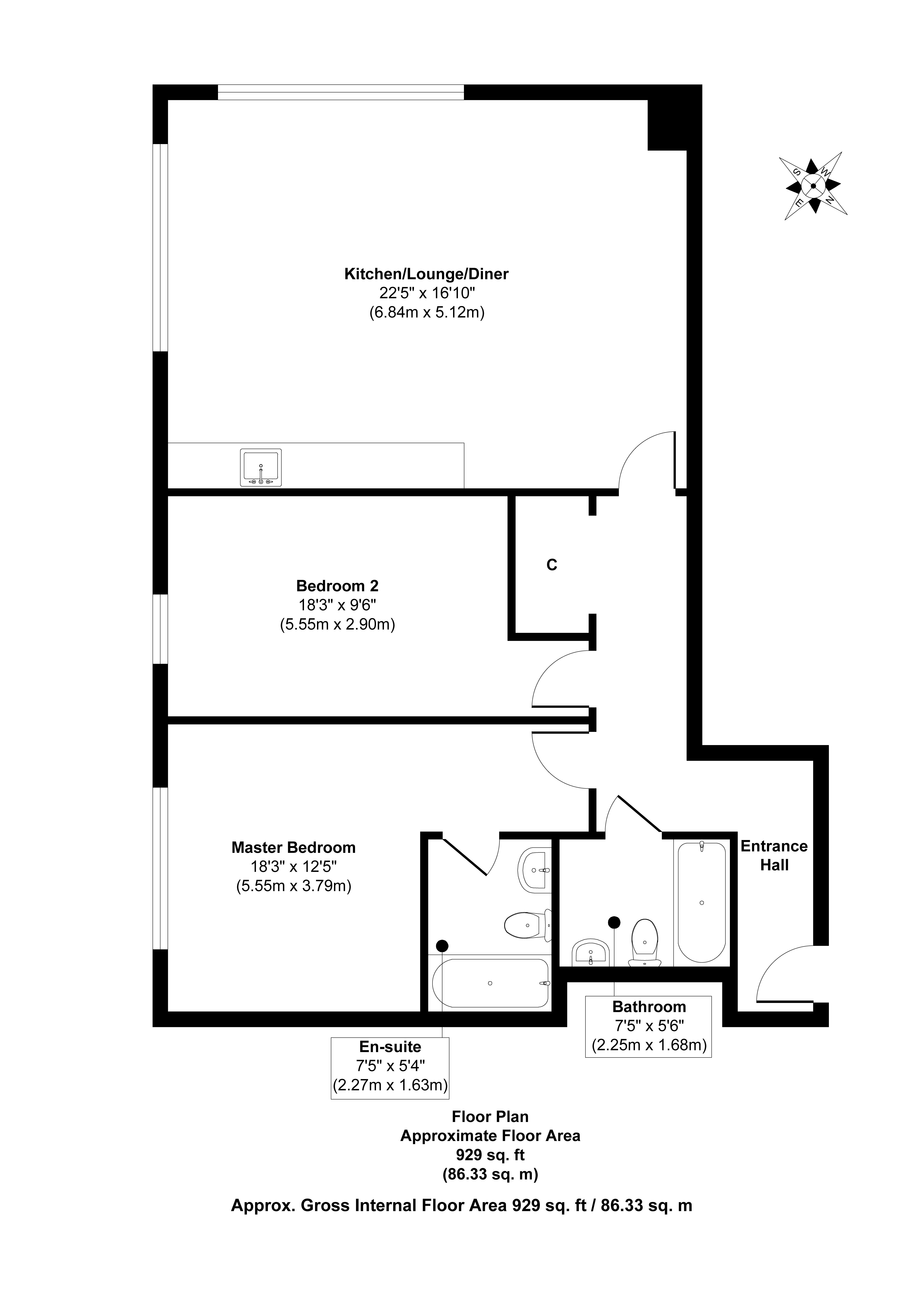
Accommodation

Entrance Hall
Bathroom
Bedroom One
En Suite Shower Room/W.C
Open Plan Kitchen/Living Room

Outside

Secure allocated underground car parking space

EPC

Energy Performance Asset Rating - C

Council Tax Band

D

Buyers Administration Fee

There will be a Buyer's Administration Fee of £2,400 (inc VAT) payable upon exchange of contracts.

Additional Information

1. Please note there is no EWS1 Certificate in place and it is understood that ongoing remedial works are required in relation to the cladding.

2. Completion will take place 14 days from the date of exchange.

3. The information contained within the Particulars are given in good faith, but all descriptions, statements, dimensions ( these may have come from a third party source e.g. the seller, valuation reports or historic sales particulars), references to condition and permissions for the use and occupation or other details are made without responsibility and should not be relied upon as representation of fact.

4. If a video walk through, or any other form of virtual tour, is provided whilst every effort is made to accurately give an overview of the property we cannot give any warranty concerning the nature, and condition of the property and the suitability thereof for any and all activities and use. The video, or tour, is provided to assist only and without responsibility and should not be relied upon as representation of fact, or replace all appropriate due diligence a prudent purchaser would make.

* Generally speaking Guide Prices are provided as an indication of each seller's minimum expectation, i.e. 'The Reserve'. They are not necessarily figures which a property will sell for and may change at any time prior to the auction. Virtually every property will be offered subject to a Reserve (a figure below which the Auctioneer cannot sell the property during the auction) which we expect will be set within the Guide Range or no more than 10% above a single figure Guide.

Loading the bidding panel...

Finance Available | Enquire Here

Additional Documents

Office Contact

Kate Lay
0161 967 0122
Logo

Important Documents

Agreement Documents

Related Documents

Legal Documents

Log in to view legal documents

Make an Enquiry

Submit an enquiry and someone will be in contact shortly.

 
*  
*  
*
*
*

Share